ZST旋風水膜脫硫技術
內容提供:無錫雷特石化重工裝備有限公司
關鍵詞:旋風水膜 煙氣脫硫
一、技術指標:
除塵效率>98%
煙塵排放濃度<100mg/m3
脫硫效率>85%
SO2排放濃度<200mg/m3
林格曼黑度<1
煙氣含濕量<6%
進口煙氣溫度150~500℃
排出的煙氣溫度60~70℃
除塵器的運行阻力<1200pa
二、工藝特點:
1、經久耐用: 除塵器采用特種耐二氧化硫露點腐蝕鋼(簡稱DNS鋼)制造,確保了除塵器本體在噴淋水的PH值在1-2的情況下不受腐蝕。DNS鋼具有比316L不銹鋼更佳的耐硫腐蝕性能。
2、脫硫除塵效率高: 采用多級環向噴咀環向噴霧,周向噴咀是除塵器的關鍵部件,它創造了對于煙氣來講一個全封閉的多個環向平面霧化層,煙氣必須軸向通過雙級環向霧化層,99%煙塵微粒及二氧化硫分子并被由中心向外連續噴發的水霧捕獲后沖向除塵器筒壁,并經旋風分離后沿筒壁落下,提高了除塵器的脫硫除塵效率。除塵效率達98%以上,脫硫效率達到82%以上。這在國內濕法除塵器中是少有的。在使用該除塵器后,燃煤的鍋爐完全有條件在一類地區使用。多級環向噴咀已成為目前絕無僅有的脫硫除塵利器。
3、氣水分離效果好: 煙氣在進口與第一級霧化水混合后高速切向進入除塵器內,在通過雙級環向噴淋層后仍高速旋轉,煙氣水霧經高速旋風分離,煙氣含濕量<6%(煙氣不經過濕法除塵器,含濕量在5%左右),運行時看不到任何水蒸汽,不會對引風機及煙道造成腐蝕。
4、節約用水: 采用雙堿法脫硫,水在系統中循環使用,不排放污水,在內陸等缺水的城市也能得到廣泛應用。
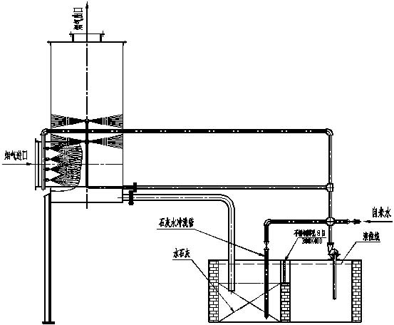
三、工藝流程圖:
![]() |
四、工作原理
含硫煙氣與堿性霧化水經旋風一起進入除塵器,灰粒及被水霧吸收的二氧化硫水珠旋風分離后流入底部,粗除后的煙氣必須縱向通過雙級環向噴咀噴出的環向堿性水霧(見環向噴咀噴霧示意圖),含硫煙氣被進一步吸收凈化,除硫、除煙、除灰后的凈空氣經引風機排入大氣。污水經旋風分離后再進入底部,經回流管道進入沉淀池。澄清后的水溢流入泵水池,經泵注入除塵器循環使用。由于水份受熱蒸發,沉清池的水不足時由一浮球閥控制水位。
環向噴咀噴霧示意圖
![]() |

使用微信“掃一掃”功能添加“谷騰環保網”