新陽光CTL型濕式脫硫除塵洗氣機技術
內容提供:北京新陽光技術開發公司
關鍵詞:脫硫除塵
一、結構原理
CTL型濕式脫硫除塵洗氣機由濕式預除塵器、鍋爐洗氣機、脫水器組成,是我公司研制開發的一種為鍋爐排煙提供動力并對其煙塵進行連續洗滌的專利產品(專利號:ZL200420048028.4),其重要突破是借助于風機內部流場及各種力的作用,形成氣、液、固三相之間高速相對運動,在為鍋爐煙氣提供動力的同時,完成除塵、脫硫的過程。
本技術運用流體力學、空氣動力學及氣溶膠理論,利用葉輪高速旋轉的作用形成超強動力,使噴于其上的堿性漿液充分霧化,并與煙氣以最大接觸面積和最大沖擊速度(60~150m/s)劇烈的碰撞、聚合,實現在最短的時間、最小的空間、最小的液氣比下氣液充分接觸,進行高速傳質的過程,在這一過程中,灰塵被液體捕捉,煙氣中的S02被洗滌液吸收并發生化合反應,完成一系列的凈化過程。煙氣在洗氣機中各階段速度的變化,在理論上等效于濕式文丘里洗滌器,文丘里氣液混合過程可以通過葉輪對氣流形成動力的同時在洗氣機內部來完成,可以說洗氣機相當于動態的文丘里,由于煙氣不是直線運動,所以洗氣機的凈化機理及效果等效并高于文丘里洗滌器,同時又避免了傳統文丘里高能耗這一缺陷,由于沒有脫硫除塵專用設備,系統阻力只有200Pa左右,只是其它脫硫除塵設備的1/5~1/7。本產品的指標完全能滿足北京市地方標準(DB11/139-2007)《鍋爐大氣污染物排放標準》中的各項指標。
二、工藝流程圖
![]() |
三、特點
1.在保證鍋爐正常運行的同時,還保證了99%以上的除塵效率,95%以上的脫硫效率,并且解決了除塵脫硫設備占地大、投資高、能耗大等一系列問題,真正做到了三效合一。
2.采用以水為凈化介質的方式,并且對產品結構進行了新的設計,減小了設備的磨損,還可為高溫煙氣降溫,防止了高溫對凈化設備及凈化效果的影響。
3.流程簡單,采用三級脫硫除塵的方法,使總效率更高。
4.設備結構新穎,具有體積小,能耗低,耐腐蝕,耐高溫,振動噪音小,壽命長,投資少,安裝檢修方便等優點,
5.設備還可用于其他各種被污染的空氣進行凈化的場所。
四、技術性能參數表
|
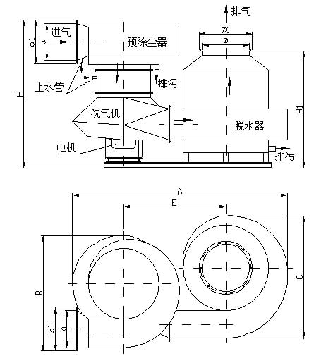
五、設備結構圖及安裝尺寸
![]() |
|
六、安裝使用說明
1.安裝單位應根據所處理的含塵煙氣量技術指標中的參數選用除塵設備。
2.在安裝前應先對風機各部分的機件進行檢查。葉輪與集風器的間隙應保證均勻、不碰撞。
3.安裝時,設備和煙氣管道之間所有連接法蘭應加密封墊,使之不漏氣。設備投入運行前應對系統的氣密性進行檢查,若有漏風,應及時處理。
4.可根據用戶現場條件進行整體設計,包括降噪、減振。設計時,盡量考慮讓鍋爐排灰水、爐渣及爐渣水在除塵脫硫發揮最大作用,以廢治污達到節能的目的。
5.水泵、風機應連鎖控制,保證設備不能缺水運行。
6.應及時調控洗滌液的PH值,使其保持在7-9之間即可。
7.沖灰水量灰水比應不小于1:15,沖灰溝坡度應不小于1.5%。

使用微信“掃一掃”功能添加“谷騰環保網”