單體靜電除塵器在傳輸系統和轉運站的應用
前言
單(dan)體除塵設(she)備(bei)(bei)在(zai)大工(gong)業發展初期,作為(wei)主設(she)備(bei)(bei)雛形(xing)被引(yin)進工(gong)藝除塵過程(cheng)中,在(zai)工(gong)業生產擴大化(hua)的(de)(de)今天(tian)又逐步被大的(de)(de)除塵器所(suo)代替。好多(duo)(duo)現場及設(she)計(ji)人員認為(wei)多(duo)(duo)點集中除塵就(jiu)可以(yi)完全取代單(dan)體設(she)備(bei)(bei),其實這種理解是片(pian)面的(de)(de),是有一定(ding)局限性的(de)(de)。在(zai)許(xu)多(duo)(duo)鋼(gang)鐵、電力行業現場,由于一些轉運站(zhan)和儲料倉距主現場很遠,并不(bu)方(fang)便將除塵灰集中收集到主除塵器,因此(ci)近期又有很多(duo)(duo)項目在(zai)改擴建過程(cheng)中重新提到就(jiu)地采用單(dan)體除塵工(gong)藝解決。
單(dan)(dan)(dan)體(ti)除(chu)塵(chen)設備按其結構可(ke)分為(wei):1.單(dan)(dan)(dan)體(ti)袋式除(chu)塵(chen)器(qi)(qi)2.單(dan)(dan)(dan)體(ti)靜電(dian)除(chu)塵(chen)器(qi)(qi)3.單(dan)(dan)(dan)體(ti)電(dian)袋除(chu)塵(chen)器(qi)(qi)4.無動(dong)力重力除(chu)塵(chen)器(qi)(qi),我們現在僅(jin)先就第二個系列(lie)"單(dan)(dan)(dan)體(ti)靜電(dian)除(chu)塵(chen)器(qi)(qi)系列(lie)"加(jia)以簡單(dan)(dan)(dan)闡(chan)述。
1、設備技術概述
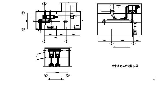
在鋼鐵行(xing)業的噴煤工(gong)藝和電(dian)(dian)(dian)(dian)力行(xing)業的原煤配(pei)給過程中(zhong),煤塵是(shi)(shi)(shi)屬于(yu)(yu)易燃易爆(bao)的粉塵,用于(yu)(yu)輸煤系(xi)(xi)統的電(dian)(dian)(dian)(dian)除(chu)(chu)塵器必(bi)須采用可靠的供(gong)電(dian)(dian)(dian)(dian)方式,才(cai)能有效(xiao)達(da)(da)到(dao)(dao)防(fang)燃防(fang)爆(bao)的目的。在此我主(zhu)(zhu)要(yao)提出的就是(shi)(shi)(shi)屬于(yu)(yu)輸煤過程中(zhong)必(bi)談的防(fang)爆(bao)防(fang)靜電(dian)(dian)(dian)(dian)單(dan)(dan)體除(chu)(chu)塵設(she)備(bei)(bei)(bei)--單(dan)(dan)體靜電(dian)(dian)(dian)(dian)除(chu)(chu)塵器。該設(she)備(bei)(bei)(bei)主(zhu)(zhu)要(yao)依托的核心技術是(shi)(shi)(shi)"單(dan)(dan)電(dian)(dian)(dian)(dian)源(yuan)供(gong)電(dian)(dian)(dian)(dian)多(duo)電(dian)(dian)(dian)(dian)場(chang)(chang)分(fen)布"技術,"單(dan)(dan)電(dian)(dian)(dian)(dian)源(yuan)供(gong)電(dian)(dian)(dian)(dian)多(duo)電(dian)(dian)(dian)(dian)場(chang)(chang)除(chu)(chu)塵"技術是(shi)(shi)(shi)在一個(ge)(ge)電(dian)(dian)(dian)(dian)源(yuan)供(gong)電(dian)(dian)(dian)(dian)的條(tiao)件下,按電(dian)(dian)(dian)(dian)除(chu)(chu)塵器通道(dao)中(zhong)粉塵濃度的分(fen)布規律,通過改變異極間(jian)距(ju),將電(dian)(dian)(dian)(dian)場(chang)(chang)分(fen)成幾(ji)個(ge)(ge)區(qu)域(yu)(yu),每個(ge)(ge)區(qu)域(yu)(yu)的電(dian)(dian)(dian)(dian)場(chang)(chang)強度均不同;由高(gao)濃度區(qu)向低(di)(di)濃度區(qu),電(dian)(dian)(dian)(dian)場(chang)(chang)強度合理增(zeng)(zeng)強,使整個(ge)(ge)通道(dao)都達(da)(da)到(dao)(dao)高(gao)除(chu)(chu)塵效(xiao)率(lv),每段(duan)都工(gong)作在最佳(jia)狀況,達(da)(da)到(dao)(dao)了(le)(le)在不增(zeng)(zeng)加電(dian)(dian)(dian)(dian)源(yuan)的情況下的多(duo)電(dian)(dian)(dian)(dian)場(chang)(chang)串級運(yun)行(xing)效(xiao)率(lv),大(da)大(da)提高(gao)了(le)(le)系(xi)(xi)統的除(chu)(chu)塵效(xiao)率(lv),在處理相同風量的情況下,使設(she)備(bei)(bei)(bei)體積減小,整機造價降低(di)(di)。該設(she)備(bei)(bei)(bei)主(zhu)(zhu)要(yao)適用于(yu)(yu)轉運(yun)站(zhan)、倉庫、料庫頂等場(chang)(chang)所(suo)。由收(shou)塵主(zhu)(zhu)體、風機、高(gao)壓電(dian)(dian)(dian)(dian)源(yuan)、高(gao)低(di)(di)壓自動控制箱、清灰裝置、絕(jue)緣子室(shi)等組成,設(she)備(bei)(bei)(bei)本體自帶吸塵風機。
![]() |
設計(ji)(ji)中(zhong)采用(yong)了(le)動(dong)態和(he)分布參(can)數設計(ji)(ji)(常(chang)規電(dian)(dian)除塵(chen)器設計(ji)(ji)是采用(yong)固定和(he)集中(zhong)參(can)數設計(ji)(ji)),使電(dian)(dian)除塵(chen)設備使用(yong)中(zhong)能更好(hao)地適應工況和(he)參(can)數變化,對電(dian)(dian)場強度、電(dian)(dian)負荷(he)匹配、收塵(chen)板(ban)面積的利用(yong)率、電(dian)(dian)源效率等參(can)數進(jin)行(xing)了(le)優化,并選用(yong)了(le)最佳數值。
在設(she)置最佳極配的(de)同時(shi)利用(yong)氣(qi)流的(de)沖擊原理,使荷電(dian)粉塵顆粒產生合力(li)驅進的(de)效(xiao)應,數倍提高(gao)了粉塵被收集的(de)速(su)度,除塵效(xiao)率大(da)(da)大(da)(da)提高(gao)。
2、現場的實際應用(yong)方案
真正達(da)到(dao)"從(cong)主(zhu)體設計(ji)到(dao)供電方式(shi)、從(cong)事故前預防(fang)措(cuo)施(shi)到(dao)萬一發生(sheng)事故的(de)防(fang)護(hu)措(cuo)施(shi)"的(de)目的(de)。在鋼鐵、電力、化(hua)工等行業,由(you)于(yu)(yu)有多(duo)種(zhong)粉(fen)塵屬于(yu)(yu)易(yi)燃易(yi)爆(bao)物,因(yin)此在物料(liao)輸送過程(cheng)中(zhong)對(dui)除塵器本體設計(ji)及運(yun)行工況(kuang)控制(zhi)中(zhong)必(bi)須采取(qu)相應的(de)防(fang)燃防(fang)爆(bao)措(cuo)施(shi),增加收塵效果(guo),主(zhu)要采用以下措(cuo)施(shi):
2.1、用C型收(shou)塵板防二次揚塵效果好,強度高不變(bian)形,長期使用除(chu)塵效果穩定。
收塵(chen)板采用(yong)C型(xing)(xing)(xing)板,C型(xing)(xing)(xing)板的(de)(de)(de)(de)槽(cao)溝(gou)是較有(you)效的(de)(de)(de)(de)防二次揚塵(chen)的(de)(de)(de)(de)公認典型(xing)(xing)(xing)的(de)(de)(de)(de)實用(yong)板型(xing)(xing)(xing),國內幾乎大(da)、小型(xing)(xing)(xing)臥式電除塵(chen)器(qi)都(dou)采用(yong)這種板型(xing)(xing)(xing),收集在(zai)極(ji)板上(shang)(shang)的(de)(de)(de)(de)粉塵(chen)脫(tuo)落(luo)時會(hui)順著槽(cao)溝(gou),避開氣(qi)流的(de)(de)(de)(de)沖刷落(luo)到集灰斗,最大(da)限度(du)(du)減少被收集的(de)(de)(de)(de)粉塵(chen)重復(fu)回到氣(qi)流中。C型(xing)(xing)(xing)陽極(ji)板采用(yong)兩邊軋壓成槽(cao)溝(gou),強度(du)(du)高不(bu)變形(xing),保證了長期(qi)使用(yong)表面(mian)光滑易脫(tuo)灰,應力變形(xing)和機(ji)械(xie)變形(xing)極(ji)小,極(ji)距的(de)(de)(de)(de)精(jing)度(du)(du)高,確保設備長期(qi)使用(yong)除塵(chen)效率(lv)不(bu)降低,使用(yong)壽命可達(da)10年以上(shang)(shang)。
2.2、采用剛性結構,起暈電(dian)壓低、放電(dian)電(dian)暈均勻穩定,使用可靠,壽(shou)命長。
采用(yong)不(bu)銹鋼針(zhen)電(dian)(dian)暈極,表(biao)面光滑易脫灰,具有(you)起暈電(dian)(dian)壓低、放(fang)電(dian)(dian)電(dian)(dian)暈均勻穩定(ding)、粉塵濃度變化時二次電(dian)(dian)流波動小等特點,使用(yong)壽命可達(da)10年,極線不(bu)易斷,無需定(ding)期更換。
2.3、配置(zhi)振(zhen)打清灰控制(zhi)系統(tong),采用(yong)超(chao)短(duan)時停(ting)風(feng)振(zhen)打,解決排放二(er)次揚塵(chen)問題,清灰效果(guo)好,長期使用(yong)除(chu)塵(chen)效果(guo)穩定。
電(dian)除(chu)(chu)塵(chen)(chen)(chen)器因設備(bei)體(ti)積、使(shi)用環(huan)境,特別是受空間(jian)(jian)的(de)限制,要(yao)求體(ti)積小(xiao)效率(lv)(lv)高(gao),為確保收塵(chen)(chen)(chen)高(gao)效率(lv)(lv)和(he)安全(quan)穩定(ding)運(yun)行(xing),我們在該單體(ti)設備(bei)中(zhong)采用了國(guo)際先進的(de)聲波清(qing)(qing)灰技(ji)術,使(shi)用聲波清(qing)(qing)灰振打的(de)方式。以保證穩定(ding)和(he)極高(gao)的(de)除(chu)(chu)塵(chen)(chen)(chen)效率(lv)(lv)。聲波清(qing)(qing)灰系統采用定(ding)時振打方式,及(ji)時通過聲波振打清(qing)(qing)除(chu)(chu)粘附在電(dian)暈(yun)極和(he)收塵(chen)(chen)(chen)板上(shang)的(de)粉(fen)塵(chen)(chen)(chen),保證二(er)次電(dian)流穩定(ding),確保除(chu)(chu)塵(chen)(chen)(chen)效率(lv)(lv)不下降。如果(guo)清(qing)(qing)灰不及(ji)時或(huo)清(qing)(qing)灰效果(guo)不佳(jia),都會(hui)使(shi)電(dian)場(chang)的(de)異極間(jian)(jian)距(ju)變(bian)窄,使(shi)運(yun)行(xing)中(zhong)二(er)次電(dian)壓和(he)二(er)次電(dian)流下降,除(chu)(chu)塵(chen)(chen)(chen)效率(lv)(lv)下降,使(shi)粉(fen)塵(chen)(chen)(chen)排放不達(da)標,同時還存在設備(bei)燃爆的(de)安全(quan)隱患。
雖(sui)然(ran)分(fen)開小區域(yu)清灰(hui)(hui)已盡量(liang)減少了二次(ci)揚(yang)塵(chen),但(dan)是(shi)作(zuo)(zuo)為電除塵(chen)器的(de)(de)(de)固有缺點,當靠近出風(feng)(feng)口(kou)的(de)(de)(de)收(shou)塵(chen)板(ban)(陽極(ji))收(shou)集到相當粉(fen)塵(chen)時(shi),聲波清灰(hui)(hui)時(shi)仍然(ran)會有部(bu)分(fen)粉(fen)塵(chen)不能再次(ci)被收(shou)集,而直(zhi)接隨氣(qi)流(liu)排出電除塵(chen)器,形成少量(liang)的(de)(de)(de)二次(ci)揚(yang)塵(chen)。為了減少或克服(fu)這種二次(ci)揚(yang)塵(chen),采用短時(shi)停(ting)風(feng)(feng)清灰(hui)(hui)方式,即在(zai)聲波清灰(hui)(hui)器工作(zuo)(zuo)時(shi)停(ting)風(feng)(feng)機 5~20秒(miao)時(shi)間(短時(shi)的(de)(de)(de)停(ting)風(feng)(feng)機現場(chang)粉(fen)塵(chen)的(de)(de)(de)擴散是(shi)可(ke)以容許的(de)(de)(de)),在(zai)此時(shi)間段完成清灰(hui)(hui)振打(da)除去電極(ji)粘附的(de)(de)(de)粉(fen)塵(chen),使(shi)二次(ci)電壓和二次(ci)電流(liu)恢復(fu)到原穩定值,保證高除塵(chen)率,使(shi)粉(fen)塵(chen)達(da)標排放。
2.4、采(cai)用(yong)外絕緣結(jie)構(gou),安(an)全、可靠,無需加熱(re)單元(yuan),可以直接投入使(shi)用(yong)。
采用(yong)電力系(xi)統戶外(wai)用(yong)高壓(ya)(ya)瓷質(zhi)支承絕緣(yuan)(yuan)子(zi)(zi),直流(liu)耐壓(ya)(ya)是工作(zuo)(zuo)使用(yong)高壓(ya)(ya)(二(er)次電壓(ya)(ya))的(de)二(er)倍以上(shang),具有抗老化性能好(hao)、抗高溫(表面閃(shan)絡時(shi)(shi))和機械強度高、通用(yong)性能好(hao)等優點。采用(yong)外(wai)絕緣(yuan)(yuan)結構,絕緣(yuan)(yuan)子(zi)(zi)放置在絕緣(yuan)(yuan)子(zi)(zi)室中,工作(zuo)(zuo)時(shi)(shi)廢氣不(bu)與絕緣(yuan)(yuan)子(zi)(zi)接觸,降低絕緣(yuan)(yuan)子(zi)(zi)表面沾污的(de)周(zhou)期時(shi)(shi)間(jian),使絕緣(yuan)(yuan)子(zi)(zi)可靠(kao)工作(zuo)(zuo)的(de)時(shi)(shi)間(jian)延長(chang)。無需加熱預熱絕緣(yuan)(yuan)子(zi)(zi),設(she)備可以隨(sui)時(shi)(shi)起動,隨(sui)時(shi)(shi)投入(ru)運行。
2.5、采用電磁(ci)雙翻板卸灰閥,有效(xiao)防止(zhi)二次(ci)揚塵
采(cai)用(yong)(yong)電磁雙翻板卸(xie)(xie)灰(hui)閥,有效防止二次揚塵的產生,對于受現(xian)場(chang)空間的限制情(qing)況,為保證灰(hui)斗(dou)的有效卸(xie)(xie)灰(hui)角度,靈活采(cai)用(yong)(yong)刮(gua)板機和翻板卸(xie)(xie)灰(hui)閥結合的排(pai)灰(hui)系(xi)統,克服(fu)集灰(hui)堵(du)塞的問(wen)題(ti),使卸(xie)(xie)排(pai)灰(hui)順暢進行。(如(ru)在不使用(yong)(yong)灰(hui)斗(dou)情(qing)況下可忽略此項)
2.6控制方式
2.6.1.運(yun)行(xing)(xing)時(shi)采用(yong)電場閃絡(luo)臨界電壓以(yi)下的工作段工作,避免運(yun)行(xing)(xing)中電場閃絡(luo);
2.6.2.采(cai)用快(kuai)速閃(shan)絡保護(hu):在萬一(yi)電(dian)(dian)場發生(sheng)掉板、塌架(jia)等故障產(chan)(chan)生(sheng)電(dian)(dian)極短路,產(chan)(chan)生(sheng)閃(shan)絡時(shi),繼電(dian)(dian)保護(hu)采(cai)用瞬(shun)時(shi)動作(zuo)把高壓供電(dian)(dian)切斷(duan);
2.6.3.在(zai)投(tou)入(ru)高壓前,風機會先起動,把機內的可燃氣(qi)體外(wai)排,確保機內氣(qi)體在(zai)可引燃的濃度極限(xian)以(yi)下,才投(tou)入(ru)高壓電源;
2.6.4除塵器的風機可實(shi)現(xian)時間程序開(kai)(kai)(kai)、停,單(dan)獨開(kai)(kai)(kai)、停控制等多種工況的控制、閉鎖(suo)控制端子。特別是對于高揮發成(cheng)份(fen)料粉(fen),可采用風機單(dan)獨定(ding)時受控開(kai)(kai)(kai)和關(guan)可達(da)到(dao)排除倉內可燃(ran)氣體,防止積聚,預防現(xian)場發生(sheng)燃(ran)爆情況;
2.6.5停(ting)止除塵器時,先停(ting)風機(ji)-振打清灰(hui)-停(ting)高壓。
3、在現場實際應(ying)用(yong)過程中需要非常注意的幾個方面
3.1 電源配(pei)置--純正弦波(bo)高壓輸出,恒流源控(kong)制供電方式具有防燃防爆功能,電氣參(can)數全真值(zhi)顯示,方便設備的調試和調整。
電(dian)(dian)除(chu)塵(chen)器設備采用純正弦波(bo)調幅調壓(ya)方式,恒流(liu)源控制高(gao)壓(ya)供(gong)電(dian)(dian),油浸自冷(leng)式50Hz高(gao)壓(ya)整流(liu)變壓(ya)器,一次和(he)(he)(he)二次電(dian)(dian)壓(ya)和(he)(he)(he)電(dian)(dian)流(liu)為全(quan)真值顯示,可直接反映(ying)電(dian)(dian)除(chu)塵(chen)系(xi)統運行(xing)中的狀態和(he)(he)(he)效(xiao)率(lv),指導(dao)設備的相應調試和(he)(he)(he)參數調整,符合(he)電(dian)(dian)除(chu)塵(chen)器供(gong)電(dian)(dian)規范,具有安(an)全(quan)可靠、維(wei)護維(wei)修(xiu)簡單和(he)(he)(he)使用壽命長(達20年以上(shang))的特點(dian)。
3.2 定(ding)電流(liu)(恒流(liu))的控(kong)制方式(shi)是設法將(jiang)電除塵(chen)(chen)器(qi)控(kong)制在不(bu)發生火(huo)花閃絡的狀態(tai)下工作。這種方式(shi)適于處理有(you)爆炸性氣體(ti)的電除塵(chen)(chen)器(qi)。
P=U×I
恒流(liu)源(yuan)供電(dian)(dian)(dian)(dian)的(de)(de)工(gong)作方(fang)式是(shi)正常工(gong)作時(shi)(shi)(shi)整定的(de)(de)電(dian)(dian)(dian)(dian)流(liu),在電(dian)(dian)(dian)(dian)場發生(sheng)閃絡時(shi)(shi)(shi)也保持恒定的(de)(de)整定值,即電(dian)(dian)(dian)(dian)流(liu)控(kong)制在十幾至幾十毫(hao)安(an)(an)的(de)(de)范(fan)圍內(nei);由(you)于電(dian)(dian)(dian)(dian)場發生(sheng)閃絡時(shi)(shi)(shi)電(dian)(dian)(dian)(dian)壓值快速降低(短路時(shi)(shi)(shi)接(jie)(jie)近零),這時(shi)(shi)(shi)的(de)(de)閃絡(短路)電(dian)(dian)(dian)(dian)功(gong)(gong)率為電(dian)(dian)(dian)(dian)壓與電(dian)(dian)(dian)(dian)流(liu)的(de)(de)乘積,故功(gong)(gong)率下降接(jie)(jie)近零,即火花(hua)(hua)功(gong)(gong)率趨近于零,火花(hua)(hua)能量很小(xiao),不會引燃引爆(bao)粉塵(chen)。因此恒流(liu)源(yuan)電(dian)(dian)(dian)(dian)源(yuan)是(shi)對處理(li)易燃易爆(bao)粉塵(chen)(煤塵(chen))的(de)(de)電(dian)(dian)(dian)(dian)除塵(chen)器(qi)是(shi)具有安(an)(an)全和保護作用的(de)(de)高壓電(dian)(dian)(dian)(dian)源(yuan),是(shi)最安(an)(an)全的(de)(de)供電(dian)(dian)(dian)(dian)方(fang)式。
恒(heng)(heng)功(gong)(gong)率(lv)供(gong)電(dian)(dian)(dian)(包括脈沖(chong)、高頻或(huo)工頻恒(heng)(heng)功(gong)(gong)率(lv)供(gong)電(dian)(dian)(dian))兩種電(dian)(dian)(dian)源就是(shi)無論在(zai)正常工作下(xia)還(huan)是(shi)發(fa)生電(dian)(dian)(dian)場(chang)(chang)閃(shan)絡(luo)、短路時,其輸出功(gong)(gong)率(lv)都是(shi)恒(heng)(heng)定的(de)(de)(de)(顧名思(si)義(yi)為(wei)(wei)"恒(heng)(heng)功(gong)(gong)率(lv)電(dian)(dian)(dian)源")。即(ji)假設當(dang)(dang)正常工作時電(dian)(dian)(dian)除塵(chen)的(de)(de)(de)工作電(dian)(dian)(dian)壓是(shi)60KV,工作電(dian)(dian)(dian)流為(wei)(wei)20mA,此(ci)時的(de)(de)(de)功(gong)(gong)率(lv)為(wei)(wei)1200W(即(ji)60kV×0.02A)。而(er)(er)(er)當(dang)(dang)陣發(fa)性粉(fen)塵(chen)進入電(dian)(dian)(dian)場(chang)(chang),粉(fen)塵(chen)濃(nong)度瞬(shun)時升高,從(cong)而(er)(er)(er)引(yin)(yin)起電(dian)(dian)(dian)場(chang)(chang)閃(shan)絡(luo)打(da)火或(huo)短路時,閃(shan)絡(luo)功(gong)(gong)率(lv)(火花功(gong)(gong)率(lv))也為(wei)(wei)1200W,火花能量很大(da);當(dang)(dang)能量達到或(huo)超過點燃(ran)(ran)煤塵(chen)的(de)(de)(de)能量時,就會點燃(ran)(ran)易(yi)(yi)燃(ran)(ran)易(yi)(yi)爆(bao)(bao)料粉(fen),在(zai)電(dian)(dian)(dian)除塵(chen)器內留下(xia)火種,這就極易(yi)(yi)引(yin)(yin)爆(bao)(bao)引(yin)(yin)燃(ran)(ran)易(yi)(yi)爆(bao)(bao)粉(fen)塵(chen)(煤粉(fen))。因此(ci)恒(heng)(heng)功(gong)(gong)率(lv)供(gong)電(dian)(dian)(dian)很容易(yi)(yi)引(yin)(yin)燃(ran)(ran)引(yin)(yin)爆(bao)(bao)煤粉(fen)塵(chen),是(shi)不(bu)宜在(zai)可燃(ran)(ran)可爆(bao)(bao)粉(fen)塵(chen)(煤粉(fen)塵(chen))的(de)(de)(de)電(dian)(dian)(dian)除塵(chen)器中使(shi)用(yong)(yong)(yong)的(de)(de)(de)供(gong)電(dian)(dian)(dian)方式。為(wei)(wei)用(yong)(yong)(yong)戶操作人員和現場(chang)(chang)的(de)(de)(de)安全考慮,我(wo)們(men)設計的(de)(de)(de)在(zai)此(ci)類場(chang)(chang)合(he)下(xia)使(shi)用(yong)(yong)(yong)的(de)(de)(de)電(dian)(dian)(dian)除塵(chen)器上(shang)不(bu)配恒(heng)(heng)功(gong)(gong)率(lv)電(dian)(dian)(dian)源,而(er)(er)(er)采用(yong)(yong)(yong)恒(heng)(heng)流電(dian)(dian)(dian)源。"高壓回路采用(yong)(yong)(yong)恒(heng)(heng)流源供(gong)電(dian)(dian)(dian),既(ji)適應(ying)陣發(fa)性粉(fen)塵(chen)控(kong)制的(de)(de)(de)要求,又具有(you)防燃(ran)(ran)防爆(bao)(bao)功(gong)(gong)能"。
3.3、高(gao)(gao)低壓自動控制器(qi)--控制柜除了PLC外其(qi)余所有器(qi)件(jian)(jian)(jian)為(wei)電磁器(qi)件(jian)(jian)(jian),耐塵污和高(gao)(gao)溫高(gao)(gao)濕條(tiao)件(jian)(jian)(jian),適宜(yi)無(wu)空調的(de)輸煤(mei)車(che)間現場環境使(shi)用,高(gao)(gao)次諧波的(de)干(gan)擾和影響小。
采(cai)用(yong)電(dian)(dian)磁型(xing)高(gao)低壓自動控(kong)(kong)制柜(ju)(ju):高(gao)壓控(kong)(kong)制輸出(chu)為調(diao)幅電(dian)(dian)壓,波型(xing)為純正弦波,克服了高(gao)次(ci)諧(xie)波的(de)(de)(de)(de)干擾和(he)影(ying)響(可(ke)控(kong)(kong)硅或(huo)IGPT控(kong)(kong)制輸出(chu)的(de)(de)(de)(de)是調(diao)相波形,高(gao)次(ci)諧(xie)波干擾影(ying)響嚴重)。控(kong)(kong)制柜(ju)(ju)除了PLC外(wai)其余所(suo)有(you)(you)器件(jian)為電(dian)(dian)磁器件(jian),其主要(yao)目的(de)(de)(de)(de)有(you)(you):適用(yong)于(yu)儲運(yun)車(che)間的(de)(de)(de)(de)現場(chang)安全可(ke)靠使用(yong)。由于(yu)控(kong)(kong)制柜(ju)(ju)是放在(zai)現場(chang)使用(yong),車(che)間內的(de)(de)(de)(de)空氣(qi)(qi)含塵(chen)(chen)(chen),含少量(liang)腐(fu)蝕性氣(qi)(qi)體(ti)和(he)有(you)(you)害(hai)氣(qi)(qi)體(ti),同(tong)時(shi)車(che)間溫度(du)、濕度(du)直接受當地(di)(di)環境氣(qi)(qi)候(hou)影(ying)響,所(suo)以(yi)儲運(yun)系(xi)統電(dian)(dian)除塵(chen)(chen)(chen)器的(de)(de)(de)(de)電(dian)(dian)氣(qi)(qi)設計(ji)只有(you)(you)選用(yong)電(dian)(dian)磁器件(jian)才(cai)能較好(hao)地(di)(di)適應現場(chang)使用(yong)環境(粉塵(chen)(chen)(chen)、腐(fu)蝕氣(qi)(qi)體(ti)、溫度(du)、濕度(du)等);通過統計(ji)多臺電(dian)(dian)除塵(chen)(chen)(chen)器控(kong)(kong)制柜(ju)(ju)的(de)(de)(de)(de)使用(yong)效果,檢驗證實了這種(zhong)電(dian)(dian)氣(qi)(qi)配置(zhi)的(de)(de)(de)(de)故障率低于(yu)千分(fen)之(zhi)六(6‰),比(bi)電(dian)(dian)子式(shi)(微機和(he)集成電(dian)(dian)路的(de)(de)(de)(de)控(kong)(kong)制柜(ju)(ju))的(de)(de)(de)(de)可(ke)靠性高(gao)得(de)多,相比(bi)之(zhi)下兩種(zhong)方式(shi)的(de)(de)(de)(de)配置(zhi)的(de)(de)(de)(de)故障率相差一個數量(liang)級(ji)以(yi)上。
4、設(she)備配置(zhi)結構及預(yu)期達到的使用效果
4.1.采用分(fen)電(dian)場結構(gou),避免粉塵陣發性進(jin)入電(dian)除塵器時產生的電(dian)場閃絡;
4.2.采(cai)用恒流(liu)(liu)源高壓供(gong)(gong)(gong)電(dian)(dian)(dian)(dian),避(bi)免在(zai)(zai)恒功(gong)率(lv)供(gong)(gong)(gong)電(dian)(dian)(dian)(dian)下(xia)短(duan)(duan)路(lu)易(yi)(yi)(yi)發生(sheng)(sheng)(sheng)事故的情況發生(sheng)(sheng)(sheng);【注:有別于(yu)普通除(chu)塵器的恒功(gong)率(lv)電(dian)(dian)(dian)(dian)源供(gong)(gong)(gong)電(dian)(dian)(dian)(dian)。因為在(zai)(zai)恒功(gong)率(lv)供(gong)(gong)(gong)電(dian)(dian)(dian)(dian)下(xia)電(dian)(dian)(dian)(dian)場(chang)發生(sheng)(sheng)(sheng)短(duan)(duan)路(lu)時(shi)會產生(sheng)(sheng)(sheng)電(dian)(dian)(dian)(dian)流(liu)(liu)急劇(ju)升高極易(yi)(yi)(yi)引(yin)(yin)爆引(yin)(yin)燃(ran)易(yi)(yi)(yi)爆料(liao)粉而發生(sheng)(sheng)(sheng)事故。而恒流(liu)(liu)電(dian)(dian)(dian)(dian)源供(gong)(gong)(gong)電(dian)(dian)(dian)(dian),在(zai)(zai)電(dian)(dian)(dian)(dian)場(chang)短(duan)(duan)路(lu)時(shi),電(dian)(dian)(dian)(dian)流(liu)(liu)值不(bu)變,電(dian)(dian)(dian)(dian)壓趨近(jin)于(yu)0,火花(hua)能(neng)量(S=IV)很(hen)小,遠(yuan)低(di)于(yu)粉塵引(yin)(yin)爆能(neng)量,所以在(zai)(zai)電(dian)(dian)(dian)(dian)場(chang)閃絡打(da)火時(shi)不(bu)易(yi)(yi)(yi)引(yin)(yin)爆粉塵。】;
4.3.除塵器(qi)絕緣體(ti)不(bu)直接與含塵氣體(ti)接觸,避免了(le)(le)絕緣體(ti)沿面爬閃放電的(de)(de)現象,保證了(le)(le)電除塵器(qi)長(chang)期可靠升(sheng)壓運(yun)行,大大提高了(le)(le)運(yun)行率,特別是(shi)對高揮發份(fen)物(wu)料物(wu)質,此防燃防爆是(shi)個非(fei)常必要(yao)的(de)(de)措(cuo)施;
4.4.電除塵器設(she)有(you)(you)有(you)(you)效的防爆(bao)(bao)卸壓門(閥),減低意外發生(sheng)爆(bao)(bao)炸時產(chan)生(sheng)的壓力,避免二(er)次損害;
4.5.為(wei)防止電除塵主體火災(zai)時,電除塵器能(neng)迅速(su)退出運行并發出火災(zai)警(jing)報;
結論
單(dan)(dan)(dan)體(ti)(ti)靜電(dian)除塵(chen)(chen)設(she)備可(ke)廣(guang)泛應用(yong)(yong)于(yu)電(dian)力、冶金、建材、化工等行業。用(yong)(yong)于(yu)收(shou)集(ji)輸送皮(pi)(pi)帶(dai)(dai)機(ji)卸料(liao)、中(zhong)轉、運(yun)(yun)(yun)送過程中(zhong)產(chan)生的粉(fen)塵(chen)(chen)。單(dan)(dan)(dan)體(ti)(ti)除塵(chen)(chen)設(she)備設(she)計合理,結構緊湊,是一種(zhong)集(ji)吸塵(chen)(chen)、除塵(chen)(chen)、回(hui)(hui)灰的機(ji)電(dian)一體(ti)(ti)化新型電(dian)除塵(chen)(chen)單(dan)(dan)(dan)體(ti)(ti)機(ji)。具有除塵(chen)(chen)效率(lv)高(gao)、工作(zuo)穩定、可(ke)靠、安(an)(an)全、自動(dong)化程度(du)高(gao)、安(an)(an)裝使用(yong)(yong)方(fang)便、體(ti)(ti)積(ji)小、重量輕和(he)高(gao)效節(jie)能等優點。使用(yong)(yong)時(shi)可(ke)直(zhi)(zhi)接(jie)安(an)(an)裝在(zai)(zai)倉(cang)庫、粉(fen)料(liao)庫頂(ding)的頂(ding)部或轉運(yun)(yun)(yun)站內部,可(ke)直(zhi)(zhi)接(jie)安(an)(an)裝在(zai)(zai)皮(pi)(pi)帶(dai)(dai)面上(shang)方(fang),也(ye)可(ke)根(gen)據現場情(qing)況,放置在(zai)(zai)皮(pi)(pi)帶(dai)(dai)上(shang)層廠房,揚塵(chen)(chen)可(ke)直(zhi)(zhi)接(jie)進入電(dian)除塵(chen)(chen)器,占用(yong)(yong)空間小,回(hui)(hui)收(shou)的粉(fen)塵(chen)(chen)可(ke)直(zhi)(zhi)接(jie)回(hui)(hui)落到料(liao)倉(cang)內或可(ke)直(zhi)(zhi)接(jie)落在(zai)(zai)皮(pi)(pi)帶(dai)(dai)上(shang),節(jie)省了(le)粉(fen)塵(chen)(chen)的回(hui)(hui)送設(she)備(如輸送機(ji)、轉運(yun)(yun)(yun)皮(pi)(pi)帶(dai)(dai)和(he)水沖輸送等),相應節(jie)省了(le)工程投資額及運(yun)(yun)(yun)行費(fei)用(yong)(yong),同時(shi)也(ye)避免(mian)回(hui)(hui)收(shou)粉(fen)塵(chen)(chen)回(hui)(hui)送時(shi)產(chan)生的揚塵(chen)(chen)污染。
參考文獻:
1.黎在時--《電除塵(chen)器的選(xuan)型安裝與運行管理》
2.陳康元--《電除塵清灰振打技(ji)術》

使用微信“掃一掃”功能添加“谷騰環保網”