光催化臭氧化(O3/UV)技術在游泳池消毒中的應用
摘要: 本文主要闡述用臭氧與紫外光輻射的協同作用,產生氧化性極強的羥自由基來對游泳池水進行殺菌消毒應用,并對臭氧-紫外聯合作用機理和游泳池臭氧投加量進行了闡述,臭氧與紫外線相結合的技術具有良好的研究開發價值和廣闊的應用前景。
關鍵詞: 臭氧;紫外光輻射;羥自由基;游泳池
1、 引言
隨著我國的經濟不斷發展,人民對文化和體育活動的要求越來越高,游泳場館及戲水娛樂場所在我國必將越來越普及。游泳池是運動員進行訓練比賽及人們鍛煉身體、娛樂的公共場所,在游泳池的建設和改造中,池水的循環處理與消毒是必不可少的環節,因為在水資源相當緊張的21世紀,泳池采用循環凈化給水系統已是共識,而消毒若達不到一定的要求,泳池就很有可能成為疾病或嚴重傳染病的擴散場所。
針對游泳場所衛生問題,衛生部于1996年修訂頒布了國家標準GB9667《游泳場所衛生標準》,其中對余氯、渾濁度、尿素、大腸菌群數等指標進行了規定,具體例舉如下:
|
該標準頒布后,原建設部行業標準CECS14: 89《游泳池給水排水設計規范》的部分條文和內容已不能滿足社會發展和標準的要求。鑒于此,建設部建筑設計院、國家體育總局游泳運動管理中心、中國游泳運動協會等三家單位聯合主編了新的CECS14:2002《游泳池和水上游樂池給水排水設計規范》。在該標準池水消毒中,首先引出了臭氧消毒方案,在其條文說明中是這樣描述的:
臭氧用于游泳池水的消毒,歐美國家已經普遍采用。我國九十年代開始采用。由于具有很好的消毒和改善池水水質的效果。近些年來開始大量應用于游泳池水的消毒。它的優缺點如下:
⑴臭氧消毒的優點:
①臭氧為強氧化劑、殺菌能力強。不僅能殺滅細菌、大腸桿菌,還能殺死病毒。
②臭氧能將水中的有機物氧化為無機物或易被吸附的其它中間物質,經后續的活性炭過濾器予以吸附而去除。從而使池水清澈發藍、透明度好、池水無刺激性、無異味,對眼、皮膚和頭發無傷害,并能使游泳池周圍的空氣清新和游泳者有舒適感。
③臭氧是以空氣為原料,通過無聲放電方法制備臭氧,操作方便。
④臭氧具有增強絮凝能力的功能,不會導致池水中有害物質和含鹽量的增加。
⑤采用活性炭濾料吸附池水中多余的臭氧和其他物質,保證了安全,且提高了池水的潔凈度。
⑥臭氧氧化池水中的有機物,不產生三氯甲烷(THM)(目前游泳池池水的此項水質指標大都嚴重超標)。并能限制有機物和無機物的濃度。
⑦設有保護系統和多余臭氧氣體的收集消化裝置,安全可靠。
⑵臭氧消毒的缺點:
①設備投資大(高于普通消毒系統的70~80%)。
②機房面積大(約為普通消毒系統的2倍)。
③相對氯,臭氧無持續消毒功能。
④臭氧不穩定,且在水中不容易溶解,故要在水處理系統內部產生和應用。
2、光催化臭氧化(O3/UV)技術
近幾年來,臭氧由于其優良的殺菌消毒特性以及發生成本的不斷下降,因此受到越來越多的水處理廠家的重視,使用臭氧作為殺菌消毒的單位也越來越多。然而,在游泳池中單一使用臭氧處理中還存在一定的缺陷:
1) 臭氧投加量大(臭氧投加量為0.6~1.0mg/l),成本相對較高;
2) 因為臭氧與水接觸反應時間應滿足CT≥1.6(C-臭氧投加量mg/l,T-臭氧與水接觸反應所需要的時間min),為保證臭氧與水的接觸時間,反應罐往往做的體積較大,成本也較高;
3) 為確保池水水面上的空氣中臭氧濃度含量不超過0.10mg/l,要用活性炭吸附罐來分解水中剩余的臭氧,對于標準型游泳池來說,活性炭罐體積會很龐大,不僅增加了工程成本,后期維護費用也很高。
光催化臭氧化(O3/UV)是將臭氧與紫外光輻射(波長在180-300nm之間)相結合的一種高級氧化過程,它始于20世紀70年代,主要用于解決有毒害且無法生物降解物質的廢水處理問題。80年代以來,研究范圍擴大到飲用水的深度處理。這種方法由Garrison等人在治理含復雜鐵氰鹽廢水中開發出來,他們發現該法對處理難氧化的物質十分有效,試驗表明,將紫外光輻射與臭氧相結合,能使氧化速度提高10~104倍。
光催化臭氧化(O3/UV)技術現主要應用于如下方面:
A、半導體產業: 對TOC去除
B、TFT-LCD 產業: TOC, 酸性物質的去除
C、電鍍產業: 毀壞氰化物 , EDTA
D、采礦:去除氰化物
E、木材加工: 去酚
F、石油化學制品 : 去除BTEX(苯、甲苯、乙苯和二甲笨)和汽油添加劑MTBE
G、核能: 去除TOC
H、煉油廠: 氯乙烯
I、易爆的制造業: TNT
J、藥品制造業 : 去除TOC、內毒素
液相臭氧在紫外光的輻射下會分解產生活潑的次生氧化劑OH自由基。OH自由基與水中的溶解物進行反應。其中對自由基產生的機理存在兩種解釋,即:
O3+hv-----O+O2
O+H2O----2OH
和O3+H2O+hv----H2O2+O2
H2O2+hv----2OH
盡管現在還不能確定哪種機理正確或在產生OH過程中占主導地位,但它們都得出1mol臭氧在紫外光輻射下產生2molOH這一結論。
臭氧-紫外(O3/UV)聯合作用機理為:
a) 紫外光輻射下,有機物的鍵發生斷裂而直接分解;
b) 紫外光輻射下,水中臭氧分解成更強氧化能力的自由基,增加了對水中有機物的氧化能力和速度;
c) 紫外光輻射使有機物外層電子處于激發態,提高分子的自由能,使有機物分子活化,從而易于在氧化劑臭氧的作用下氧化分解。
3、 各種方法對自來水中大腸桿菌滅菌率比較
在自來水各項基本指標都相同的條件下,用O3、UV、O3/UV分別做大腸桿菌殺菌率對比試驗,結果如圖一所示
![]() |
由以上試驗可知,臭氧-紫外(O3/UV)聯合作用效果不僅超過單獨臭氧和單獨紫外線的作用,甚至超過兩者的疊加。在實際應用中,在游泳池中采用臭氧-紫外法會比單一使用臭氧減少臭氧投加量50%以上。同時,由于紫外光輻射的作用,水中的臭氧多數轉化為自由基OH,并且紫外線對水中剩余的臭氧有分解和破壞作用,通過測試水中臭氧剩余濃度可知,經過紫外光輻射后水中剩余臭氧的濃度低于0.05mg/l,這樣使水中揮發到空氣中的臭氧濃度低于國家安全排放標準成為可能。同時可以不用活性炭罐對水中臭氧進行吸附,減少了工程成本。再有,紫外光輻射與臭氧相結合,能使氧化速度提高10~104倍,因此,大大縮小了臭氧反應罐的體積,甚至不用反應罐,而利用管道的長度來增加臭氧與水的混合時間。
4、光催化臭氧化(O3/UV)技術在游泳池中的應用特點
UV-O3系統的高效氧化過程其優點可歸納如下:
●環保:無二次污染,除游泳池異味,免發質損傷,消除池水對人眼睛和皮膚的刺激。
●節水:反洗水減少50%,總節水20%。
●省藥:池水混凝劑和氯制劑可減少80%
●高效:殺菌能力和殺菌速度大幅提高,避免使用活性炭罐的麻煩及衛生方面的問題。
●便捷:需用廠房面積小,安裝、操作容易,維護也較簡單。
●自然:可以有效去除氯氣味,空氣清新,水質潔凈,蔚藍透明
●成本低:,是單一使用臭氧成本的1/2。
5、游泳池光催化臭氧化系統選擇與設計的主要考慮因素
a) 主要設計依據
水質評價應按GB9667-1996《游泳場所衛生標準》要求進行,設計主要應依據CECS14-2002 《游泳池和水上游樂池給水排水設計規范》,人員負荷設計等可參考DIN19643《游泳池與浴池水的處理》等。過濾器應符合《JB2932水處理環保設備制造技術條件》等。
b) 水處理循環方式、循環周期和流量
池水凈化處理循環方式有順流、逆流、混合流三種,規范池、比賽池應采用混合流凈化處理循環方式。
循環周期:Tx=24/n(h),n為每天循環次數,公共游泳池一般為4-6次。
循環流量:qx=αf·V/Tx其中Tx循環周期,αf為管道、凈水設備和補給水箱的水容積系數,一般按1.1-1.2選取,V為游泳池的水容積。
c) 臭氧投加量的確定:
以標準游泳池(21mX50m,水深1.8m)為例:標準池水量1890m3
采用分流量投加
臭氧投加量:0.6-1.0mg/L,如以標準泳池為例,qx=1.1·1890/6=340噸/小時
如采用分流量投加,一般分流量為全流量的25%,上述例則為340/4=85 m3/h。
單一臭氧投加量:D=qx·投加量,,投加量0.8mg/l,則D= 68克/小時。
考慮到紫外光催化的作用,實際的臭氧投加量為68X50%=34克/小時(可選擇40g/h的臭氧發生器一臺即可)。
注:臭氧投加量大小的選擇必須考慮混合系統的混合效率后才能決定,如果混合系統混合效率低,就要相應采用高數值的臭氧投加量。效率高可以低數值臭氧投加量。
d) 臭氧投加方式:
標準要求負壓投加,一般采用射流或氣液混合泵吸入法, 實踐表明氣液混合泵混合效率可高達80%左右,因此本方案采用氣液混合泵進行臭氧與水的混合。
e) 紫外線的選擇
紫外線消毒設備可根據分流量水量略放大一些,選取標準設備即可。此例可選用100t/h的紫外線設備,功率700W。
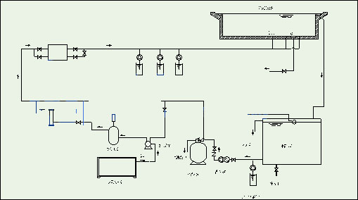
6、 工藝流程圖
![]() |
北京同林高科科技有限責任公司多年從事臭氧技術開發和研究,成功為多個泳池完成消毒方案。得到非常好的效果。
結論:
1、臭氧—光催化系統對游泳池水的消毒效率大于單獨使用臭氧或紫外線,具有廣泛的推廣價值。
2、臭氧—光催化系統降低了游泳池的消毒成本,消毒系統體積小,安裝、操作、維護簡單方便。
3、臭氧與紫外線相結合的技術具有良好的研究開發價值和廣闊的應用前景

使用微信“掃一掃”功能添加“谷騰環保網”