D型濾池在成都沙河污水處理廠深度處理中的應用
一、工程概況
成都沙河污水處理廠是成都市中心城水環境綜合治理的一個重要組成部分。該工程的源水是成都市生活污水,二級處理工藝采用的是A2/O法,深度處理采用的是DA863過濾技術——D型濾池。
工程規模:處理水量為100000m3/d,總變化系數KZ=1.3;
深度處理的進水即為二級處理出水,懸浮物SS≤50mg/L;
過濾出水經消毒后排入沙河,出水懸浮物SS≤10mg/L。
二、處理工藝流程
深度處理采用的是DA863過濾技術——D型濾池。二沉池出水自流后直接進入D型濾池進行過濾,濾池出水經紫外線消毒后排入沙河。
三、處理構筑物及主要設計參數
3.1過濾:過濾采用的是DA863過濾技術——D型濾池。濾池共兩組,每組濾池分為4格,每格面積28m2。濾料為彗星式(自適應)纖維濾料,濾料散裝填裝高度0.8m。設計濾池采用氣水聯合反沖洗,過濾速度V=24.2m/h,強制濾速V強=27.6m/h。反沖洗周期8h~24h,每次反沖洗15~20min。水、氣反沖洗強度分別為Q水=6L/s·m2、Q氣=20L/s·m2;氣水同時反沖洗強度Q氣+Q水=20+6L/s·m2;表面掃洗水強度Q表=2.8L/s·m2。
3.2反沖洗設備
3.2.1反洗風機:單臺風量20m3/min,升壓50kpa,軸功率24.91kw,配有進出口消聲器、壓力表、安全閥、止回閥及撓性接頭,選用3臺,2用1備。
3.2.2反洗水泵:單臺水泵流量350m3/h,揚程11.5m,功率18.5KW,效率³77%,噪聲£79dB(A),防護等級IP44,絕緣等級B,選用3臺,2用1備。
3.2.3反洗設備房:平面尺寸18m×10m。
3.3消毒:消毒區渠道分二道,鋼筋混凝土結構,平面尺寸為L×B=9.0m×5.5m,渠深為1.55米,
有效水深為0.712米,渠內設有紫外線消毒設備一套,分兩組,總功率為72kw,紫外線裝置后渠道設置有水位控制閥門,保證消毒渠水位恒定,紫外線消毒裝置連續工作。
四、自 控
每個濾池的控制系統采用可編程控制裝置Premium PLC與中控室Premium PLC和觸摸屏組成的控制系統實現對D型濾池系統的進行操作監控,D型濾池系統PLC將作為全廠水控制系統控制網絡上(以太網)的一個站點,通過PLC以太網的通訊接口接入全廠控制系統控制網絡,運行人員對任何一個濾池的控制系統、水處理中控室以及總控室都能對其被控對象(濾池)進行操作、監控,包括啟、停控制,設備狀態和主要工藝參數監控,設備的手動/自動切換(在就地電控箱上完成)。工藝設備的聯鎖保護將由電氣硬件接線和PLC軟件完成。
五、D型濾池
D型濾池是由德安公司自主設計的一種快濾池。它采用863纖維濾料,小阻力配水系統,氣水反沖洗,恒水位或變水位過濾方式。D型濾池具備傳統快濾池的主要優點,同時運用了DA863過濾技術,多方面性能優于傳統快濾池,是一種實用、新型、高效的濾池。
5.1彗星式(自適應)纖維濾料
彗星式(自適應)纖維濾料是一種新型的過濾材料,是一種不對稱構形過濾材料,一端為松散的纖維絲束,稱“彗尾”,另一端為比重較大的實心體,稱“彗核”,彗尾纖維絲束固定于彗核內,整體呈彗星狀[1]。彗星式纖維濾料的不對稱結構使得其兼有顆粒濾料和纖維濾料的特點[2]。
由該濾料形成的濾床空隙率分布接近理想濾料的結構。在該濾床的橫斷面(水平)上空隙率分布均勻,確保了過濾時水流通道大小一致性,其直接效果是截污量均勻,水流短路現象得以避免。在該濾床的縱斷面(垂直)空隙率分布由上至下逐漸減少,空隙率沿濾床縱斷面呈上大下小的梯度分布,該結構十分有利于水中固體懸浮物的有效分離,即濾床上部脫附的顆粒很容易在下部窄通道的濾床中被捕獲而截留。
過濾時,比重較大的彗核對纖維絲束起到壓密作用,同時由于彗核尺寸較小,對過濾斷面空隙分布的均勻性影響不大,從而提高了濾床的截污能力。反沖洗時,由于彗核和彗尾纖維絲束的比重差,彗尾纖維隨反沖洗水流而散開并擺動,產生較強的甩曳力,濾料之間的相互碰撞也加劇了纖維在水中所受到的機械作用力,濾料的不規則形狀使濾料在反沖洗水流作用下產生旋轉,強化了反沖時濾料受到的作用力,上述幾種力的共同作用使附著在纖維表面的固體顆粒很容易脫落,從而提高了濾料的洗凈度。
5.2特點
5.2.1采用彗星式纖維濾料,可實現高濾速、高精度的過濾,從而減少占地面積,提高出水質量;
5.2.2 D型濾池的控制可采用手動控制和自動控制兩種方式,可根據用戶需要制定,靈活、先進;
5.2.3特有的攔截技術,可保證濾料在反沖洗時不會流失;
5.2.4反沖洗耗水率低(≤2%濾水量),運行費用省;
5.2.5具有鋼板和混凝土兩種結構型式,根據用戶和實際需要選擇,最大程度地節約投資費用;
5.2.6抗沖擊性能強。
5.3構造簡圖
D型濾池在工藝設計上分為配水(含進水和出水)系統、氣水反沖洗系統。
濾池主體結構(包括池體、池內分區隔墻、梁柱、V型槽、出水槽)為現澆鋼筋混凝土結構。
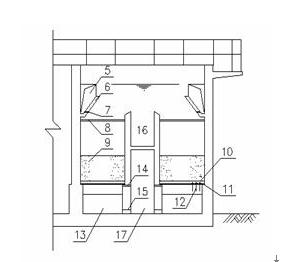
5—V型槽進水側孔;6—V型槽;7—表面掃洗孔;8—濾料攔截板;9—DA863纖維濾料;10—濾網板;11—濾板;12—長柄濾頭;13—底部空間;14—布氣圓孔; 15—配水方孔;16—排污槽;17—氣水分配渠;18—水封池;19—出水堰;20—清水渠;21—清水閥;22—排水閥;23—初濾水閥;24—沖洗水閥;25—沖洗氣閥;26—廢氣閥
![]() |
圖 D型濾池構造簡圖
5.4內部配水布氣系統
1、蓋 板(8):防止濾料在反沖洗時進入排水槽而流失。蓋板的材質為PP,安裝時與蓋板支撐通過不銹鋼螺栓連接。安裝嚴密并有足夠的剛性,保證在反沖洗時不會產生2mm以上的間隙。
2、蓋板支撐(7):用于安裝蓋板。材質為碳鋼,安裝時放置在與預埋在濾池內的鋼板相焊接的環角鋼上,并焊接。安裝間隙保證在2mm以內。
3、濾網板(5):小阻力配水系統,尺寸規格為497mm×330mm,δ=24mm。材質為PP,每個網格間間距2mm,空隙率占整個面積的30%左右。通過濾板上的螺栓孔與支承板連接。濾網板安裝應平整,塊與塊之間互相嚙合,與池壁之間的間隙應用PP棒焊堵。
4、支承板(4):用于支撐濾網板,增強濾網板的承載能力。材質為PP,安裝在濾網板與濾板之間,每個濾網板采用2個支承板。
5、長柄濾頭(1):均勻收集濾后水,均勻分配反沖洗水。通徑φ15,材質為ABS,特制的注塑長柄濾頭,其總面積與濾池面積之比約為1.25%。通過螺母固定在濾板上,采用高度可調節結構,初次安裝后,濾池應放水,調節濾頭出口在一個水平面上,誤差不得大于±2mm。
6、濾 板(3):固定濾頭,每塊濾板固定144個濾頭。材質為增強PP板,水平安裝,整個池面的水平誤差不得大于±2mm,承載能力不低于500kg/m2。
5.5主要工藝參數
名 稱 |
參 數 |
進水濁度 |
一般情況下≤10NTU |
出水濁度 |
一般情況下≤1NTU |
濾 速 |
15~ |
過濾周期 |
一般情況下8~24h |
水頭損失 |
0.6~ |
六、處理效果
四川成都沙河污水處理工程于2003年3月動工,投入運行時間為2004年9月15日,下表是D型濾池七天的進出水懸浮物數據。
日 期 |
SS值(mg/L) |
|
進 水 |
出 水 |
|
2004.10.19 |
25.2 |
9.60 |
2004.10.20 |
27.2 |
8.60 |
2004.10.21 |
27.4 |
8.60 |
2004.10.22 |
18.2 |
6.40 |
2004.10.25 |
17.4 |
5.80 |
2004.10.26 |
19.4 |
4.60 |
2004.10.27 |
17.2 |
4.40 |
從上表的數據中中可以看出,D型濾池在以污水處理廠二級處理出水為原水進行直接過濾中,出水懸浮物能達到10 mg/L以下,能滿足一般深度處理回用水的水質要求。
七、技術經濟指標
7.1濾池占地面積:710m2;反洗設備房占地面積:180m2;
7.2 D型濾池工程投資:工程總投資約850萬元(不含消毒工藝),其中土建投資約200萬元;設備、電氣、儀表約650萬元。
7.3 D型濾池運行成本:成都沙河污水處理廠D型濾池工程運行成本約為0.022元/m3。
項目 |
電費 |
人工費 |
維修費 |
折舊費 |
合 計 |
費用(元/m3) |
0.002 |
0.004 |
0.005 |
0.011 |
0.022 |
八、結束語
8.1 D型濾池的土建施工精度要求比較高,特別是布氣孔的標高、進水堰標高在施工中應特別注意;
8.2在施工過程中發現V型槽的施工難度比較大,可以用不銹鋼制作替代。
8.3 D型濾池作為一種新型、高效的快濾池,以其高精度、高速度的特點,不斷地在中水回用領域中被推廣使用。目前已用于中水回用工程的有銀川市第一污水處理廠、北京懷柔污水廠等。
8.4本次工程設計,在德安公司技術人員的大力配合下,取得了良好的效果。我們認為D型濾池在我國的中水回用工程技術中,具有很好的應用前景。
參考文獻:
[1] 李振瑜,劉力群,金志剛. 彗星式纖維過濾體. 中國實用新型.ZL 98249298.7
[2] 李振瑜, 王夏. 彗星式纖維過濾材料. 給水排水, 2002,6:71-74

使用微信“掃一掃”功能添加“谷騰環保網”