寶鋼公司1、3號燒結機余熱回收裝置經濟效益分析
寶(bao)鋼(gang)3套(tao)大型燒(shao)結機(ji)(ji)中2號(hao)燒(shao)結機(ji)(ji)于90年(nian)(nian)代初從日本成套(tao)引進余(yu)熱回(hui)收裝置。10余(yu)年(nian)(nian)來年(nian)(nian)產(chan)蒸汽(qi)32萬(wan)t以(yi)上,供寶(bao)鋼(gang)生產(chan)使用(yong);每年(nian)(nian)還可(ke)從廢(fei)氣中回(hui)收鐵礦(kuang)粉末約1萬(wan)t返回(hui)燒(shao)結利用(yong)。寶(bao)鋼(gang)決定自(zi)行開發(fa)1、3號(hao)燒(shao)結機(ji)(ji)安(an)裝余(yu)熱回(hui)收裝置。
1號和(he)3號燒結機(含環(huan)冷(leng)(leng)機)的(de)型號、規(gui)格、工藝參(can)數以(yi)及余熱(re)(re)(re)資源都完全相同。每套(tao)燒結機的(de)余熱(re)(re)(re)資源有兩(liang)部(bu)分(fen)(fen):主排(pai)煙氣(qi)(qi)(qi)顯熱(re)(re)(re)和(he)環(huan)冷(leng)(leng)機廢(fei)氣(qi)(qi)(qi)顯熱(re)(re)(re)(注:后者成分(fen)(fen)為(wei)空氣(qi)(qi)(qi))。以(yi)生(sheng)產蒸汽的(de)形(xing)式(shi)回收這兩(liang)部(bu)分(fen)(fen)余熱(re)(re)(re)資源。為(wei)此,必(bi)須分(fen)(fen)別(bie)安(an)裝主排(pai)余熱(re)(re)(re)鍋(guo)(guo)(guo)(guo)爐(lu)(lu)(lu)(lu)和(he)環(huan)冷(leng)(leng)余熱(re)(re)(re)鍋(guo)(guo)(guo)(guo)爐(lu)(lu)(lu)(lu)。余熱(re)(re)(re)鍋(guo)(guo)(guo)(guo)爐(lu)(lu)(lu)(lu)按其結構形(xing)式(shi)屬于煙道(dao)式(shi)余熱(re)(re)(re)鍋(guo)(guo)(guo)(guo)爐(lu)(lu)(lu)(lu)。其受(shou)(shou)熱(re)(re)(re)面采用分(fen)(fen)組管箱的(de)形(xing)式(shi):由上(shang)而下(xia)依次是過熱(re)(re)(re)器(qi)(qi)、蒸發(fa)器(qi)(qi)、省(sheng)煤器(qi)(qi)和(he)副(fu)省(sheng)煤器(qi)(qi)。在余熱(re)(re)(re)鍋(guo)(guo)(guo)(guo)爐(lu)(lu)(lu)(lu)的(de)頂部(bu)還設置(zhi)一個供汽水(shui)分(fen)(fen)離的(de)汽包(bao)。在余熱(re)(re)(re)鍋(guo)(guo)(guo)(guo)爐(lu)(lu)(lu)(lu)的(de)側面布(bu)置(zhi)有除氧器(qi)(qi)、補充(chong)水(shui)泵和(he)循環(huan)水(shui)泵。受(shou)(shou)壓(ya)部(bu)件(jian)的(de)設計、制造、檢驗和(he)安(an)裝均應(ying)執行《蒸汽鍋(guo)(guo)(guo)(guo)爐(lu)(lu)(lu)(lu)安(an)全技術監控規(gui)程(cheng)》的(de)有關規(gui)定(ding)。
1、余熱鍋(guo)爐設計參數
根據(ju)1、3號燒結機實際運行(xing)參(can)數(shu),并參(can)考引進(jin)日(ri)本的2燒余熱(re)鍋(guo)爐實際測量參(can)數(shu),作為1、3號燒結機主(zhu)排余熱(re)鍋(guo)爐和環(huan)冷余熱(re)鍋(guo)爐的設計參(can)數(shu),詳見表1。其工藝流程見圖1。
表1:余熱(re)鍋爐設計參(can)數
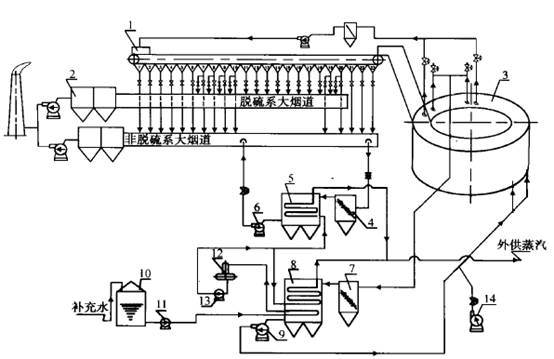
1—燒結(jie)機;2—主(zhu)電除塵(chen)(chen)器(qi);3—環冷機;4—主(zhu)排除塵(chen)(chen)器(qi);5—主(zhu)排余熱(re)鍋爐;
6—主排引(yin)風機;7—環冷除塵器;8—環冷余熱(re)鍋爐;9—環冷引(yin)風機;10—儲水箱(xiang);
11—補充水(shui)泵;12—除氧器(qi);13—鍋爐給水(shui)泵;14—備用風機
圖1:1號、3號燒結機余(yu)熱回收裝(zhuang)置工藝流程圖
2、部(bu)分輔助設備(bei)參數(shu)
2.1除塵(chen)器
選用沖擊板(ban)式除塵(chen)器(qi)作為(wei)余熱鍋爐入口廢氣的凈(jing)化(hua)處理設備其設計參數見表2。
表2:沖擊板除塵器設計參數表
2.2循環風機
循(xun)環(huan)風(feng)機是(shi)用來為經過除塵器、余熱鍋爐、燒結礦料(liao)層和連接管道及其閥(fa)門的廢氣提供循(xun)環(huan)動(dong)力的關鍵(jian)設備(bei)。其設計參數見表3。
表3:循環風機設計參數
3、經濟效益評價(jia)
按1臺燒結機的(de)(de)主排余熱回收裝置和環冷(leng)余熱回收裝置的(de)(de)最低(di)生產(chan)蒸(zheng)汽量(liang)和最低(di)回收鐵礦粉計算,年均(jun)蒸(zheng)汽產(chan)量(liang)32.6萬t;年均(jun)回收鐵礦粉0.8萬t。根據概預算專業和技(ji)術經濟(ji)專業計算的(de)(de)結果,有關經濟(ji)效益(yi)評價指標(biao)詳(xiang)見表4。
表4:經濟效益評價指標
寶鋼(gang)1燒或3燒余熱回(hui)收(shou)裝(zhuang)置1年(nian)可以分(fen)別生產蒸汽32.6萬(wan)t供生產使用(回(hui)收(shou)約0.8萬(wan)t鐵礦粉)。投(tou)資回(hui)收(shou)期稅后為5.53~8.46年(nian)。這些經(jing)濟(ji)評價指標說明這兩套余熱回(hui)收(shou)裝(zhuang)置的(de)經(jing)濟(ji)效益是比較好的(de)。

使用微信“掃一掃”功能添加“谷騰環保網”