工程:某高爐渣處理系統的工藝設計與改進
濟鋼1#1750m3高爐采用嘉恒法渣處理設備,生產中存在設備處理能力不足、水量不平衡及管道磨損等問題。濟鋼2#1750m3高爐的設計吸取了1#高爐的經驗,增(zeng)加了1臺單體設備,形(xing)成兩用一備的工作(zuo)制度,增(zeng)設1座大型平(ping)流沉淀池,并對管路系統進行了優化(hua),解決了在1#高爐中(zhong)存在的問題,運行良好。
1 前 言
濟南鋼鐵集團總公司(簡稱濟鋼)2002~2004年,共建成并投產了兩座1750m3高爐。兩座高爐的(de)渣(zha)處(chu)理系統(tong)皆采用了(le)唐山嘉恒(heng)(heng)公司的(de)渣(zha)處(chu)理設備(bei)(簡(jian)稱嘉恒(heng)(heng)法)。
嘉(jia)恒法渣(zha)粒化裝置(zhi)相對OCP法、INBA法等(deng)渣(zha)處(chu)理(li)裝置(zhi)而(er)言,具有結構緊湊、占地(di)面積小、投資成(cheng)(cheng)本低、成(cheng)(cheng)品渣(zha)質量(liang)好等(deng)優點,但由于(yu)(yu)渣(zha)處(chu)理(li)系統(tong)在(zai)整個(ge)高(gao)(gao)爐(lu)生產過程中(zhong)處(chu)于(yu)(yu)被(bei)動地(di)位,高(gao)(gao)爐(lu)爐(lu)料(liao)組成(cheng)(cheng)、冶煉工藝、利用系數等(deng)的變(bian)動都會引起瞬(shun)時(shi)渣(zha)量(liang)的變(bian)化,對整個(ge)系統(tong)造成(cheng)(cheng)嚴重(zhong)影響(xiang)。
通過濟鋼1#1750m3高爐近兩年的生產實踐來看,由于高爐生產過程中瞬時渣量的大范圍波動,出現了設備處理能力不足、大量跑水跑渣及管道磨損較快等問題,并造成高爐經常放火渣,制約了高爐的穩產、高產,大大提高了生產成本,且對區域環境也造成了很大的影響。濟鋼2#1750m3高爐的渣處理系統設計時,為了統一備件,所選設備各參數同1#高爐,但同時接受了1#高爐的(de)經驗(yan)教訓(xun),對整(zheng)個系統的(de)工(gong)藝方案進行了全面更(geng)新。
2 1#高爐渣處理系統工藝簡介及問題分析
2.1 工藝簡介
高爐渣處(chu)理系統共(gong)設1臺雙體嘉(jia)恒(heng)法渣處(chu)理裝置,兩者一(yi)用一(yi)備(bei)。
高爐火(huo)渣(zha)從渣(zha)溝(gou)進入(ru)(ru)嘉恒法(fa)渣(zha)處(chu)理裝置粒化器,被高速(su)旋轉的粒化輪(lun)機械破碎,并沿切線方向(xiang)拋出,同(tong)時(shi)受(shou)粒化器內高壓(ya)水(shui)射流冷卻及(ji)水(shui)淬作用形(xing)成水(shui)渣(zha)產(chan)品(pin),隨(sui)后渣(zha)水(shui)混(hun)合(he)物經過水(shui)渣(zha)溝(gou)落入(ru)(ru)脫水(shui)器篩斗中(zhong)。
渣(zha)(zha)(zha)水(shui)(shui)混合物通(tong)過(guo)(guo)篩(shai)(shai)斗(dou)中(zhong)1.2~4.0mm間(jian)隙(xi)的(de)(de)篩(shai)(shai)網(wang)實現渣(zha)(zha)(zha)水(shui)(shui)分離,成品粒化渣(zha)(zha)(zha)留在篩(shai)(shai)斗(dou)中(zhong),水(shui)(shui)則通(tong)過(guo)(guo)篩(shai)(shai)網(wang)流入回(hui)水(shui)(shui)槽。篩(shai)(shai)斗(dou)中(zhong)的(de)(de)渣(zha)(zha)(zha)到達頂部(bu)時翻落進入受(shou)料斗(dou),通(tong)過(guo)(guo)受(shou)料斗(dou)下部(bu)出(chu)口落在皮帶(dai)機上,由皮帶(dai)機運(yun)至貯渣(zha)(zha)(zha)場保存及(ji)外運(yun)。其(qi)間(jian)產生的(de)(de)高溫蒸汽通(tong)過(guo)(guo)渣(zha)(zha)(zha)處理(li)裝置(zhi)上部(bu)的(de)(de)煙囪集中(zhong)排放(fang)。
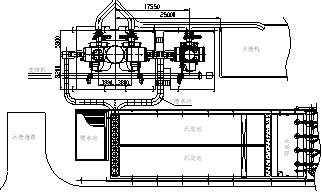
通過脫(tuo)水器(qi)篩網過濾的(de)循環(huan)水,經水槽出水口和回水管(guan)道進入(ru)集水池及(ji)沉(chen)(chen)淀池,沉(chen)(chen)淀池內的(de)細渣通過渣漿(jiang)泵打入(ru)脫(tuo)水系統進行二次回收脫(tuo)水,沉(chen)(chen)淀后(hou)的(de)水循環(huan)利用(yong)。工藝(yi)流程見(jian)圖1。工藝(yi)布置見(jian)圖2。
![]() 圖1 濟鋼1#高爐渣處理系統工藝流程 |
![]() 圖2 濟鋼1#高爐渣處理系統工藝布置 |
2.2 存在的問題
2.2.1 設備能力不能滿足生產要求 濟鋼1#高爐設計爐容為1750m3,利用系數2.3t/m3.d(最大利用系數2.5t/m3.d),渣鐵比300kg/t,最大渣量8t/min,每天渣量約1313t。設計選型時,渣處理設備最大處理量為8t/min,噸渣補充新水0.7m3,雙體設備為一用一備,最大供水強度為1500m3/h。
在生產實踐中,高爐各參數與設計參數相差較大,其中高爐利用系數已達2.8t/m3.d,且隨著進一步的強化冶煉,利用系數還會提高,可達3.0t/m3.d 左右(you);渣(zha)(zha)(zha)鐵比及最大瞬時(shi)(shi)渣(zha)(zha)(zha)量(liang)也會隨物料的入爐品位(wei)及冶(ye)煉工藝的變化不(bu)斷波動,最大瞬時(shi)(shi)渣(zha)(zha)(zha)量(liang)可(ke)達15t/min。渣(zha)(zha)(zha)量(liang)的增大直接導致(zhi)了設備處理能力的不(bu)足,首先表現(xian)(xian)在粒(li)化輪的壽命大大縮(suo)短,且由于(yu)渣(zha)(zha)(zha)量(liang)過大,特(te)別(bie)是(shi)最大渣(zha)(zha)(zha)量(liang)瞬間(jian),脫(tuo)水器無(wu)(wu)法(fa)(fa)過濾(lv)掉細渣(zha)(zha)(zha),使得污水外溢,蒸汽(qi)也由于(yu)無(wu)(wu)法(fa)(fa)從煙囪及時(shi)(shi)排放而(er)由進渣(zha)(zha)(zha)口(kou)溢出,由此導致(zhi)整(zheng)個生產(chan)現(xian)(xian)場(chang)臟、亂(luan)、差。
由于最(zui)大渣量(liang)(15t/min)與正(zheng)常渣量(liang)(3t/min)懸殊(shu)過大,如按最(zui)大渣量(liang)進行(xing)設備(bei)選型則造成(cheng)設備(bei)能力(li)的極大過剩,且設備(bei)供水、蒸汽排(pai)放(fang)及設備(bei)占地面積、工程造價(jia)等也相(xiang)應增大。
2.2.2 水量不平衡,造成大量工業水外排 設備設計時按噸渣消耗新水0.7m3考慮,由于入爐爐料、冶煉工藝及最大渣量的變化,使得每爐爐渣的消耗水量成為不確定因素,且最大渣量時間的不確定性導致無法按需調節供水量。正常生產時供水強度全部為1500m3/h,同時溝頭冷卻、殼體冷卻等處皆由工業新水補充(循環水含細渣過多且溫度過高),出渣完畢后設備還要空轉約20min以過濾出沉淀池中的細渣。以上原因造成了補充新水大于實際消耗水量,使得大量工業新水由循環池外溢,每日約外排400m3左右,造成資源的極大浪費。
2.2.3 管(guan)(guan)道系統磨(mo)損嚴重(zhong) 由(you)于循環水中含細渣較(jiao)多,且(qie)水壓(ya)較(jiao)高(gao),渣水混合物對(dui)管(guan)(guan)道的磨(mo)損較(jiao)為(wei)嚴重(zhong),現(xian)場(chang)曾(ceng)使(shi)用(yong)的稀土(tu)合金耐磨(mo)管(guan)(guan)及陶瓷內(nei)襯(chen)復合管(guan)(guan)僅使(shi)管(guan)(guan)路系統的壽命有所延(yan)長,但無法從根(gen)本(ben)上解決管(guan)(guan)路磨(mo)損問題,且(qie)整個(ge)系統中渣漿泵的事故率也非常高(gao)。
上(shang)述問(wen)題嚴重制(zhi)約(yue)整(zheng)個渣(zha)處理(li)系統的(de)正常運行(xing),也(ye)大幅(fu)度增加了生產運行(xing)成本。
3 2#高爐渣處理系統工藝簡介及改進措施
濟鋼2#高爐渣處理系統的設計吸取了1#高爐的經驗,通過全新的工藝布置,徹底解決了1#高爐所存在的問題。
3.1 工藝簡介
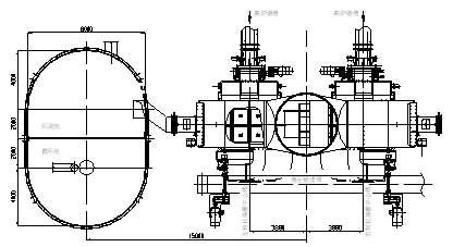
2#高爐設(she)1臺(tai)雙(shuang)體設(she)備(bei)(bei)(bei)及1臺(tai)單體設(she)備(bei)(bei)(bei),共有3臺(tai)設(she)備(bei)(bei)(bei)形成了兩(liang)用(yong)一備(bei)(bei)(bei)的(de)工(gong)作制度(du),其中雙(shuang)體設(she)備(bei)(bei)(bei)共用(yong)一個(ge)煙(yan)囪,單體設(she)備(bei)(bei)(bei)單獨(du)使用(yong)一個(ge)煙(yan)囪。
高爐火渣進入渣處理設備,經粒化輪、脫水器后,成品渣落入下方的渣運輸皮帶直接運至渣場,渣水混合物通過脫水器篩網后由渣水溝直接進入平流沉淀池,沉淀后的水循環利用。2#高爐渣處理系統(tong)的工(gong)藝(yi)布置見圖3。
![]() 圖3 濟鋼2#高爐渣處理系統工藝布置 |
對照兩座高爐渣處理系統工藝布置情況可以看出,除2#高爐增加了1臺單體設備外,其它設備基本沒有變動,變動最大處在沖渣水的處理及循環利用方面。2#高爐渣處理系統中平流沉淀池及渣水溝的應用使得1#高爐中存在的(de)問題得到了較好的(de)解(jie)決。
3.2 渣處理系(xi)統工(gong)藝問題解決方案
(1)兩用一備的工作制度,解決了設備能力不足的問題。每臺設備的處理能力仍為8t/min,即使在最大渣量時也可滿足生產要求。3臺設備可以任意開啟其中兩臺,為設備的檢修提供了充裕的時間。由于該設備與濟鋼1#高爐相(xiang)同,也為生產備(bei)件(jian)的組織(zhi)提供了有(you)利條(tiao)件(jian)。兩用一備(bei)的工作制度不(bu)僅使設備(bei)能力滿足了生產要求,也使設備(bei)使用壽命(ming)大(da)大(da)提高,節省了大(da)量檢(jian)修時間(jian)。
(2)整個系(xi)統的所有(you)用水(shui)全部納(na)入循環系(xi)統,解決了水(shui)資源(yuan)浪費(fei)問題。
為便于控制水量,2#高爐設計時將該系統全部用水皆納入循環,大型平流沉淀池的使用使得細渣可及時沉淀,且循環水水溫可有效降低。在溝頭冷卻及殼體冷卻等對水溫及水質要求較為嚴格的用水點,工藝上采用過濾及冷卻設備,將沉淀池內的循環水經過處理后加以利用。該區域泵房內設有4臺流量為800~1100m3/h 的(de)水(shui)(shui)(shui)泵(beng),最大用水(shui)(shui)(shui)強(qiang)度時三用一備,用戶也可(ke)(ke)以根據生(sheng)產情況控制泵(beng)的(de)開啟數量(liang),以滿足系統供(gong)水(shui)(shui)(shui)要求。平流(liu)沉(chen)淀池(chi)內(nei)(nei)設有(you)液位計,只有(you)當循環(huan)系統內(nei)(nei)的(de)水(shui)(shui)(shui)消耗到規定水(shui)(shui)(shui)位時,才對池(chi)內(nei)(nei)水(shui)(shui)(shui)量(liang)進行補充,補充水(shui)(shui)(shui)可(ke)(ke)以是其它(ta)區域(yu)的(de)廢水(shui)(shui)(shui),這樣就大大節約了工(gong)業新水(shui)(shui)(shui)的(de)用量(liang),也使得周圍區域(yu)的(de)廢水(shui)(shui)(shui)再利(li)用成(cheng)為可(ke)(ke)能,使得生(sheng)產成(cheng)本大幅下降。
(3)取消返渣系統,以渣水溝代替管道,解決了管道磨損問題。經分析,經高速旋轉的粒化輪機械破碎后產生的高爐細渣棱角分明,且硬度較高,對渣漿泵、輸送管道及管道閥門等的磨損非常嚴重。2#高爐設計時,取消了渣處理系統的所有渣水混合物輸送管道,從脫水器流出(chu)的渣水直接流入(ru)渣水溝(gou),經(jing)渣水溝(gou)進入(ru)平流沉淀池。渣水溝(gou)底(di)部為半圓形,內壁粘貼鑄石磚以防(fang)磨損(sun)及積渣,溝(gou)蓋采用活動(dong)蓋板(ban),便于定期清淤。蓋板(ban)上部可(ke)通(tong)車。
濟鋼2#高爐于2005年4月正式投入生產,近1年的生產實踐表明,2#高爐渣處理區域的設計完全解決了1#高爐所(suo)存在的問(wen)題,達到 了預(yu)期(qi)效果。
4 問題及建議
(1)濟鋼2#高(gao)爐平流沉(chen)淀池內每天約沉(chen)淀細(xi)渣200t,需約10輛汽車外(wai)運。在高(gao)爐區域緊張的場地(di)條(tiao)件下,造(zao)成交通的進(jin)一(yi)步擁擠(ji),且運輸過程(cheng)中(zhong)渣水灑落,對廠區環境(jing)造(zao)成一(yi)定影響(xiang)。
考慮平流沉(chen)淀池的(de)細(xi)渣(zha)(zha)(zha)脫(tuo)水(shui)池距離(li)渣(zha)(zha)(zha)運輸(shu)皮帶(dai)(dai)較近,建議采用帶(dai)(dai)裙(qun)邊(bian)皮帶(dai)(dai)將脫(tuo)水(shui)池內的(de)細(xi)渣(zha)(zha)(zha)直接輸(shu)至(zhi)渣(zha)(zha)(zha)運輸(shu)皮帶(dai)(dai)上,運至(zhi)渣(zha)(zha)(zha)場統一外(wai)運。也可考慮采用氣力輸(shu)送裝置。
(2)平流沉淀池內循環水(shui)水(shui)溫約80℃,特別是在冬季蒸汽較為嚴重,不僅影響(xiang)了上部天(tian)車(che)工的(de)視線,也(ye)對該處環境(jing)造成一定污(wu)染(ran)。
可(ke)考慮(lv)將平流沉淀池(chi)上部(bu)進(jin)行(xing)密封,底部(bu)用(yong)(yong)鏈(lian)式刮(gua)板(ban)機將下(xia)部(bu)沉淀的(de)細(xi)渣刮(gua)出,上部(bu)蒸汽可(ke)用(yong)(yong)煙囪收(shou)集進(jin)行(xing)統一處理或排(pai)放。
(3)可以借鑒環(huan)保INBA法的(de)一(yi)些成功經驗,對該區域所有蒸汽進(jin)行冷(leng)凝(ning)回收,以達到環(huan)境保護及水資源(yuan)重復利用的(de)效果。

使用微信“掃一掃”功能添加“谷騰環保網”