電袋復合除塵器的濾料試驗與應用
摘要:清(qing)(qing)灰周期與阻力是除塵(chen)器的(de)主(zhu)要技術性能指標。本(ben)文研究了粉(fen)(fen)塵(chen)濃度及荷電粉(fen)(fen)塵(chen)對清(qing)(qing)灰周期與阻力的(de)影(ying)響(xiang),總(zong)結(jie)了影(ying)響(xiang)電袋復合除塵(chen)器性能的(de)主(zhu)要因素,介紹了電袋復合除塵(chen)器的(de)應用實(shi)例,并分析了電袋復合除塵(chen)器的(de)適(shi)用性。
關鍵詞:電(dian)袋復(fu)合除塵(chen)器,清灰周(zhou)期,殘余阻力
電除塵(chen)器在我國的(de)電力行業已有數(shu)十年的(de)應用(yong)歷史。電除塵(chen)器的(de)優點是(shi)阻力小、設備經久耐用(yong);缺(que)點是(shi)除塵(chen)效率受煤種的(de)影響很大,尤其是(shi)現在燃(ran)煤電廠的(de)煙氣粉塵(chen)排放要求在50mg/Nm3以(yi)下(xia),除塵(chen)效率難以(yi)保(bao)證。
袋式(shi)除(chu)(chu)塵(chen)器(qi)是一(yi)種(zhong)過(guo)濾(lv)式(shi)除(chu)(chu)塵(chen)設(she)備(bei)。其突出(chu)的(de)優點是除(chu)(chu)塵(chen)效(xiao)率高并且非(fei)常穩定,不受(shou)煤(mei)(mei)種(zhong)的(de)影響,可保證出(chu)口粉塵(chen)濃(nong)度小于50mg/Nm3。我國(guo)的(de)燃煤(mei)(mei)電廠原先大多(duo)采(cai)用電除(chu)(chu)塵(chen)器(qi),但從2004年開(kai)始,國(guo)家(jia)對(dui)燃煤(mei)(mei)電廠煙氣采(cai)用了(le)新的(de)排放標準,國(guo)內目前已有(you)很多(duo)電廠使用或準備(bei)使用袋式(shi)除(chu)(chu)塵(chen)器(qi)。
電(dian)(dian)(dian)袋復合(he)(he)除(chu)(chu)(chu)塵(chen)(chen)(chen)(chen)(chen)器是電(dian)(dian)(dian)除(chu)(chu)(chu)塵(chen)(chen)(chen)(chen)(chen)器與袋式(shi)(shi)除(chu)(chu)(chu)塵(chen)(chen)(chen)(chen)(chen)器的(de)(de)(de)(de)有(you)機組合(he)(he)。它(ta)的(de)(de)(de)(de)基本設想是先(xian)由前(qian)級電(dian)(dian)(dian)場預(yu)收煙氣(qi)中70%以(yi)上(shang)(shang)的(de)(de)(de)(de)粉(fen)(fen)(fen)(fen)塵(chen)(chen)(chen)(chen)(chen)量,再(zai)由后(hou)級袋式(shi)(shi)除(chu)(chu)(chu)塵(chen)(chen)(chen)(chen)(chen)器捕集煙氣(qi)中殘余的(de)(de)(de)(de)細微(wei)粉(fen)(fen)(fen)(fen)塵(chen)(chen)(chen)(chen)(chen)。前(qian)級電(dian)(dian)(dian)場的(de)(de)(de)(de)預(yu)除(chu)(chu)(chu)塵(chen)(chen)(chen)(chen)(chen)降低了(le)濾(lv)(lv)袋的(de)(de)(de)(de)粉(fen)(fen)(fen)(fen)塵(chen)(chen)(chen)(chen)(chen)負荷量,因而也(ye)降低了(le)袋式(shi)(shi)除(chu)(chu)(chu)塵(chen)(chen)(chen)(chen)(chen)器阻(zu)(zu)力(li)的(de)(de)(de)(de)上(shang)(shang)升速率(lv)。此外,同種電(dian)(dian)(dian)荷的(de)(de)(de)(de)荷電(dian)(dian)(dian)又使得粉(fen)(fen)(fen)(fen)餅層變得疏(shu)松,在(zai)相同的(de)(de)(de)(de)粉(fen)(fen)(fen)(fen)塵(chen)(chen)(chen)(chen)(chen)負荷下,帶有(you)同種電(dian)(dian)(dian)荷的(de)(de)(de)(de)粉(fen)(fen)(fen)(fen)餅層阻(zu)(zu)力(li)更小。電(dian)(dian)(dian)袋復合(he)(he)除(chu)(chu)(chu)塵(chen)(chen)(chen)(chen)(chen)器的(de)(de)(de)(de)共同作用(yong)使得濾(lv)(lv)袋的(de)(de)(de)(de)清灰(hui)周(zhou)期(qi)變長(chang),從而可以(yi)節省(sheng)除(chu)(chu)(chu)塵(chen)(chen)(chen)(chen)(chen)器的(de)(de)(de)(de)清灰(hui)能耗、延(yan)長(chang)濾(lv)(lv)袋的(de)(de)(de)(de)使用(yong)壽命。但(dan)經過(guo)電(dian)(dian)(dian)場后(hou)的(de)(de)(de)(de)煙氣(qi)不僅粉(fen)(fen)(fen)(fen)塵(chen)(chen)(chen)(chen)(chen)濃(nong)度(du)發生了(le)變化,而且由于顆粒較粗的(de)(de)(de)(de)粉(fen)(fen)(fen)(fen)塵(chen)(chen)(chen)(chen)(chen)容易被(bei)電(dian)(dian)(dian)場除(chu)(chu)(chu)去,所(suo)以(yi)到達袋式(shi)(shi)除(chu)(chu)(chu)塵(chen)(chen)(chen)(chen)(chen)區(qu)的(de)(de)(de)(de)平(ping)均粉(fen)(fen)(fen)(fen)塵(chen)(chen)(chen)(chen)(chen)粒徑也(ye)會變小,這會導致除(chu)(chu)(chu)塵(chen)(chen)(chen)(chen)(chen)器阻(zu)(zu)力(li)的(de)(de)(de)(de)上(shang)(shang)升。也(ye)就(jiu)是說,預(yu)除(chu)(chu)(chu)塵(chen)(chen)(chen)(chen)(chen)具有(you)正反兩方面的(de)(de)(de)(de)作用(yong)。筆(bi)者在(zai)實驗室研究了(le)粉(fen)(fen)(fen)(fen)塵(chen)(chen)(chen)(chen)(chen)濃(nong)度(du)對濾(lv)(lv)料動(dong)態過(guo)濾(lv)(lv)特性的(de)(de)(de)(de)影(ying)響(xiang),以(yi)及(ji)電(dian)(dian)(dian)場的(de)(de)(de)(de)預(yu)除(chu)(chu)(chu)塵(chen)(chen)(chen)(chen)(chen)和荷電(dian)(dian)(dian)的(de)(de)(de)(de)綜合(he)(he)效應,并介(jie)紹(shao)了(le)電(dian)(dian)(dian)袋復合(he)(he)除(chu)(chu)(chu)塵(chen)(chen)(chen)(chen)(chen)器的(de)(de)(de)(de)應用(yong)實例。
1 試驗
1.1 濾料的過濾性能測試
濾(lv)(lv)料的(de)(de)(de)過(guo)濾(lv)(lv)性能主要指(zhi)的(de)(de)(de)是在過(guo)濾(lv)(lv)過(guo)程中濾(lv)(lv)料的(de)(de)(de)阻(zu)力變化狀況(kuang)及凈化效率。目前國際上最(zui)先進(jin)的(de)(de)(de)濾(lv)(lv)料性能測試方法是將濾(lv)(lv)料置于含塵(chen)氣流(liu)中,模擬現場(chang)的(de)(de)(de)工(gong)作條件,通過(guo)反(fan)復的(de)(de)(de)過(guo)濾(lv)(lv)與清灰(hui)來測試濾(lv)(lv)料的(de)(de)(de)過(guo)濾(lv)(lv)性能。
圖1是根據(ju)日本JIS標準制(zhi)造(zao)的(de)濾料測(ce)試(shi)裝置[1],利用該(gai)設備可以在連續的(de)過濾與清(qing)灰過程中,測(ce)試(shi)濾料兩側的(de)壓差變化(hua)狀況及凈化(hua)效率。
![]() |
測(ce)試(shi)裝置的(de)主要(yao)流程(cheng)如下:由(you)供(gong)粉裝置定量給(gei)出(chu)的(de)粉塵(chen)在(zai)粉塵(chen)分散器內,與高(gao)速噴出(chu)的(de)壓(ya)縮空氣(qi)(qi)(qi)混合(he)形成粉塵(chen)濃度穩定的(de)含(han)塵(chen)氣(qi)(qi)(qi)流。含(han)塵(chen)氣(qi)(qi)(qi)流在(zai)真空泵(beng)的(de)吸引下流經濾(lv)(lv)料,絕大部分粉塵(chen)被(bei)捕(bu)集在(zai)被(bei)測(ce)濾(lv)(lv)料表面,透過濾(lv)(lv)料的(de)粉塵(chen)則被(bei)下游的(de)濾(lv)(lv)紙捕(bu)集。當濾(lv)(lv)料兩側(ce)的(de)壓(ya)差達到設定值時,壓(ya)縮空氣(qi)(qi)(qi)罐內噴出(chu)高(gao)壓(ya)氣(qi)(qi)(qi)體,實施清灰過程(cheng)。清灰時,逆止(zhi)閥自動打開(kai),以(yi)使塵(chen)氣(qi)(qi)(qi)通(tong)過過濾(lv)(lv)器外排。
圖 2 是試驗測(ce)得的(de)(de)(de)濾(lv)料動態阻(zu)力特性(xing)曲線。從圖中可(ke)以看到(dao),隨著(zhu)時(shi)間(jian)(jian)的(de)(de)(de)增(zeng)加(jia),由于(yu)濾(lv)料上(shang)粉塵的(de)(de)(de)不斷堆積(ji)(ji)導致差(cha)壓(ya)(ya)的(de)(de)(de)不斷增(zeng)高(gao)。當壓(ya)(ya)差(cha)達到(dao)1000Pa時(shi)開始清(qing)(qing)(qing)灰(hui)(hui),隨著(zhu)堆積(ji)(ji)在濾(lv)料上(shang)粉塵的(de)(de)(de)剝離,壓(ya)(ya)差(cha)在瞬間(jian)(jian)從1000Pa降到(dao)了數十Pa。兩次(ci)清(qing)(qing)(qing)灰(hui)(hui)間(jian)(jian)的(de)(de)(de)時(shi)間(jian)(jian)間(jian)(jian)隔稱(cheng)之為(wei)清(qing)(qing)(qing)灰(hui)(hui)周(zhou)(zhou)期,清(qing)(qing)(qing)灰(hui)(hui)后剩余的(de)(de)(de)壓(ya)(ya)差(cha)稱(cheng)之為(wei)殘余阻(zu)力。隨著(zhu)清(qing)(qing)(qing)灰(hui)(hui)次(ci)數的(de)(de)(de)增(zeng)加(jia),殘余阻(zu)力會升高(gao),清(qing)(qing)(qing)灰(hui)(hui)周(zhou)(zhou)期則會縮短(duan)。殘余阻(zu)力升高(gao)及(ji)清(qing)(qing)(qing)灰(hui)(hui)周(zhou)(zhou)期縮短(duan)的(de)(de)(de)速度與濾(lv)料、粉塵的(de)(de)(de)性(xing)質及(ji)清(qing)(qing)(qing)灰(hui)(hui)效果等有很大的(de)(de)(de)關系。
![]() |
1.2 粉塵濃度對濾料動態阻力的影響
與常規的(de)袋(dai)式除(chu)塵(chen)器(qi)相比,在電袋(dai)復(fu)合除(chu)塵(chen)器(qi)中,由(you)于(yu)通過(guo)電場的(de)預除(chu)塵(chen),粉(fen)塵(chen)的(de)濃度(du)大幅度(du)減少(shao),在其它所有試驗(yan)條件(濾(lv)料、粉(fen)塵(chen)、過(guo)濾(lv)速(su)度(du)、清(qing)灰壓(ya)力等)相同(tong)的(de)情(qing)況(kuang)下,本文研究(jiu)了粉(fen)塵(chen)濃度(du)對(dui)濾(lv)料動態阻力特(te)性的(de)影響。
試驗條件如表1所示。
![]() |
圖(tu)3、圖(tu)4給出了(le)在9種不(bu)同的(de)(de)粉(fen)塵濃度(du)條(tiao)件下,100個過濾循環中(zhong)(zhong)平(ping)均的(de)(de)殘(can)余阻力(li)與清(qing)(qing)灰周期(qi)。從圖(tu)中(zhong)(zhong)可以看出,粉(fen)塵濃度(du)不(bu)影(ying)響殘(can)余阻力(li)的(de)(de)變化,而清(qing)(qing)灰周期(qi)隨粉(fen)塵濃度(du)降低(di)而延(yan)長。即(ji)在電袋復合除塵器中(zhong)(zhong),如果不(bu)考慮其(qi)它(ta)因素的(de)(de)影(ying)響,由于電場除去了(le)大(da)(da)部分粉(fen)塵,則(ze)袋式(shi)除塵器的(de)(de)清(qing)(qing)灰周期(qi)將會(hui)大(da)(da)大(da)(da)延(yan)長。
1.3 粉塵的荷電對濾料動態阻力的影響
荷電粉塵的動態阻力測試(shi)在東北(bei)大(da)學的實驗室進行。
試驗裝(zhuang)置(zhi)(zhi)如圖(tu) 5 所(suo)(suo)示(shi)(shi),基本結(jie)構(gou)類似于(yu)圖(tu)1所(suo)(suo)示(shi)(shi)的(de)試驗裝(zhuang)置(zhi)(zhi),主要(yao)不同之處在于(yu)試驗裝(zhuang)置(zhi)(zhi)的(de)豎直管道(dao)內有一個高(gao)壓(ya)電場(chang)。試驗時,在高(gao)壓(ya)電場(chang)的(de)作用下粉(fen)塵(chen)被(bei)(bei)(bei)荷(he)(he)電,一部分粉(fen)塵(chen)被(bei)(bei)(bei)吸附到管道(dao)的(de)內壁上并被(bei)(bei)(bei)去除,其余荷(he)(he)電粉(fen)塵(chen)隨氣流經(jing)過置(zhi)(zhi)于(yu)水平段最前部的(de)濾料而被(bei)(bei)(bei)捕集。荷(he)(he)電粉(fen)塵(chen)的(de)試驗條件如表 2 所(suo)(suo)示(shi)(shi)。
|
圖6給(gei)出(chu)了(le)在電(dian)場不加(jia)電(dian)壓(ya)和施(shi)加(jia)4kV與8kV電(dian)壓(ya)時,清灰周期的(de)變化情(qing)況。在粉塵(chen)供應(ying)量(liang)相同的(de)條件下,電(dian)場的(de)電(dian)壓(ya)越高,濾(lv)料(liao)的(de)清灰周期就越長(chang)。這是由(you)于電(dian)場的(de)電(dian)壓(ya)越高,電(dian)場部分除(chu)去的(de)粉塵(chen)也(ye)就越多,粉塵(chen)的(de)荷電(dian)效(xiao)應(ying)也(ye)越明(ming)顯。所以較高的(de)電(dian)場電(dian)壓(ya)有助(zhu)于延長(chang)濾(lv)料(liao)的(de)清灰周期。
![]() |
圖(tu)7給出了濾料上堆積(ji)相同的粉(fen)(fen)塵(chen)量(liang)時(shi),荷(he)電粉(fen)(fen)塵(chen)形成的粉(fen)(fen)餅層(ceng)(ceng)與(yu)未荷(he)電粉(fen)(fen)餅層(ceng)(ceng)阻(zu)力的比(bi)(bi)較(jiao)。從圖(tu)7中可以看到,在試驗條件下,經8kV電場(chang)荷(he)電后(hou)的粉(fen)(fen)餅層(ceng)(ceng)的阻(zu)力要比(bi)(bi)未荷(he)電時(shi)低約25%。這個試驗結果(guo)既包含了粉(fen)(fen)塵(chen)的粒(li)徑(jing)變化效(xiao)(xiao)應,也包含了粉(fen)(fen)塵(chen)的荷(he)電效(xiao)(xiao)應。
在電袋復合(he)除塵(chen)(chen)器中(zhong),通常電場除去的(de)(de)粉(fen)(fen)塵(chen)(chen)會(hui)達到80%左右,這就極大(da)地延長(chang)了清(qing)灰(hui)周期(qi)。粉(fen)(fen)塵(chen)(chen)粒徑(jing)變化(hua)與荷(he)電作用雖具有兩(liang)方面的(de)(de)效應(ying),但總的(de)(de)來說(shuo)也有助(zhu)于延長(chang)清(qing)灰(hui)周期(qi),只不過它與粉(fen)(fen)塵(chen)(chen)濃度減小(xiao)的(de)(de)效應(ying)相比要(yao)小(xiao)得多(duo)。所以通過上(shang)述(shu)試驗(yan),可以認為(wei),在電袋復合(he)除塵(chen)(chen)器中(zhong),主(zhu)要(yao)是(shi)因為(wei)進入袋式除塵(chen)(chen)區的(de)(de)粉(fen)(fen)塵(chen)(chen)濃度減小(xiao)而使清(qing)灰(hui)周期(qi)得以大(da)大(da)延長(chang)。
2 電袋復合除塵器的應用
2.1 電袋復合除塵器的型式
目前(qian)(qian)國內外的電袋(dai)(dai)(dai)復(fu)合(he)(he)除(chu)塵(chen)(chen)器(qi)主要有兩(liang)種型式(shi)(shi),一種為(wei)(wei)“前(qian)(qian)電后袋(dai)(dai)(dai)”方式(shi)(shi),美國的COHPAC[2]屬于這一種類型。這種電袋(dai)(dai)(dai)復(fu)合(he)(he)除(chu)塵(chen)(chen)器(qi)的前(qian)(qian)部為(wei)(wei)電除(chu)塵(chen)(chen)器(qi),后部為(wei)(wei)袋(dai)(dai)(dai)式(shi)(shi)除(chu)塵(chen)(chen)器(qi)。根據電除(chu)塵(chen)(chen)與(yu)袋(dai)(dai)(dai)除(chu)塵(chen)(chen)之(zhi)間是否(fou)有煙(yan)道,又(you)將(jiang)其分(fen)為(wei)(wei)分(fen)體式(shi)(shi)(見(jian)圖8)與(yu)一體式(shi)(shi)(見(jian)圖9)兩(liang)種。另(ling)一種稱之(zhi)為(wei)(wei)AHPC[3]的電袋(dai)(dai)(dai)復(fu)合(he)(he)除(chu)塵(chen)(chen)器(qi)結構比(bi)較(jiao)復(fu)雜,含塵(chen)(chen)氣流通過多孔板(ban)狀的集塵(chen)(chen)極后再流向濾袋(dai)(dai)(dai),目前(qian)(qian)國內還未見(jian)到采(cai)用該電袋(dai)(dai)(dai)復(fu)合(he)(he)除(chu)塵(chen)(chen)器(qi)的工(gong)程應用實例。
![]() |
目前(qian)國內應(ying)用的(de)(de)(de)(de)電(dian)(dian)(dian)袋(dai)復(fu)合除(chu)(chu)塵器(qi)基(ji)本為(wei)“前(qian)電(dian)(dian)(dian)后袋(dai)”方式(shi)。如浙(zhe)江(jiang)菲(fei)達(da)公司(si)現已有多臺分體(ti)式(shi)的(de)(de)(de)(de)電(dian)(dian)(dian)袋(dai)除(chu)(chu)塵器(qi)在(zai)投運,其中最大(da)的(de)(de)(de)(de)為(wei)廣州玖龍(long)紙(zhi)業的(de)(de)(de)(de)210MW機(ji)組(zu)。一體(ti)式(shi)的(de)(de)(de)(de)有內蒙古包頭第二熱電(dian)(dian)(dian)廠200MW機(ji)組(zu)、湖南石(shi)門(men)電(dian)(dian)(dian)廠300MW機(ji)組(zu)及安(an)徽田家(jia)庵300MW機(ji)組(zu)配套(tao)的(de)(de)(de)(de)電(dian)(dian)(dian)袋(dai)復(fu)合除(chu)(chu)塵器(qi)等。2008年10月,浙(zhe)江(jiang)菲(fei)達(da)公司(si)取得(de)了(le)印度(du)JHARSUGUDA電(dian)(dian)(dian)廠3×660MW機(ji)組(zu)的(de)(de)(de)(de)配套(tao)電(dian)(dian)(dian)袋(dai)除(chu)(chu)塵器(qi)的(de)(de)(de)(de)合同,這是目前(qian)世界上配套(tao)裝機(ji)容量最大(da)的(de)(de)(de)(de)電(dian)(dian)(dian)袋(dai)復(fu)合除(chu)(chu)塵器(qi),其中的(de)(de)(de)(de)袋(dai)式(shi)除(chu)(chu)塵器(qi)也是國內廠家(jia)所承建的(de)(de)(de)(de)最大(da)的(de)(de)(de)(de)袋(dai)式(shi)除(chu)(chu)塵器(qi)。
2.2 電袋復合除塵器的應用實例
內蒙古(gu)包頭第二(er)熱電(dian)廠(chang)的200MW煤(mei)粉爐(lu),該(gai)系統的脫硫采用NID半干法(fa),除(chu)塵(chen)采用4電(dian)場電(dian)除(chu)塵(chen)器(qi)。由于排放標準(zhun)的提高(gao),原有電(dian)除(chu)塵(chen)器(qi)已不能(neng)滿(man)足需要,2007年對其進行了改(gai)造(zao),2008年1月,改(gai)造(zao)后(hou)的電(dian)袋(dai)復(fu)合(he)除(chu)塵(chen)器(qi)投(tou)運。
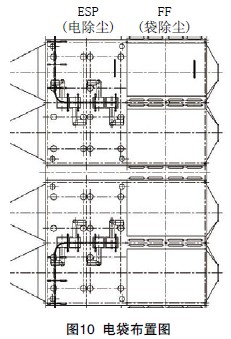
電(dian)(dian)(dian)除塵(chen)(chen)器(qi)(qi)(qi)的(de)改(gai)造方案為(wei)(wei):保(bao)留原電(dian)(dian)(dian)除塵(chen)(chen)器(qi)(qi)(qi)的(de)前(qian)2個電(dian)(dian)(dian)場、殼(ke)體與灰斗,將后兩個電(dian)(dian)(dian)場改(gai)為(wei)(wei)袋(dai)式除塵(chen)(chen)器(qi)(qi)(qi)(見圖10),電(dian)(dian)(dian)除塵(chen)(chen)器(qi)(qi)(qi)與袋(dai)式除塵(chen)(chen)器(qi)(qi)(qi)之間布置(zhi)(zhi)有(you)氣(qi)流(liu)分布裝置(zhi)(zhi)。除塵(chen)(chen)系(xi)統的(de)主要技術參數(脫硫(liu)工況(kuang))為(wei)(wei):入口(kou)風量160萬m3/h;煙氣(qi)溫(wen)度80℃;粉塵(chen)(chen)濃度1500g/Nm3;過濾面積為(wei)(wei)25,000m2;濾料為(wei)(wei)PPS針刺氈(zhan),PTFE浸(jin)漬(zi)處(chu)理。
![]() |
2008年9月,該除(chu)塵(chen)器由內蒙(meng)古(gu)自(zi)治區環境檢(jian)測(ce)中心站組織測(ce)試,在(zai)(zai)除(chu)塵(chen)器入(ru)口粉塵(chen)濃(nong)度高達1500g/Nm3的(de)(de)情況下(xia),粉塵(chen)排放濃(nong)度僅(jin)為20.6mg/Nm3。而此(ci)時(shi)除(chu)塵(chen)器的(de)(de)阻力小于1500Pa,清灰周期在(zai)(zai)2小時(shi)以上(shang)。之所以在(zai)(zai)這樣高濃(nong)度的(de)(de)粉塵(chen)下(xia),電(dian)袋復合除(chu)塵(chen)器還是保(bao)(bao)(bao)持了(le)很好的(de)(de)性(xing)能,一(yi)方(fang)面是因為在(zai)(zai)袋式除(chu)塵(chen)器前面保(bao)(bao)(bao)留了(le)2個電(dian)場,使得脫(tuo)硫后(hou)的(de)(de)高濃(nong)度粉塵(chen)在(zai)(zai)進入(ru)袋式除(chu)塵(chen)時(shi)減(jian)少了(le)90%以上(shang);另一(yi)方(fang)面,合理的(de)(de)氣流分(fen)布設計與高效(xiao)率的(de)(de)清灰系(xi)統也是保(bao)(bao)(bao)證除(chu)塵(chen)器性(xing)能的(de)(de)必要條件。
3 結語
電袋復(fu)(fu)合(he)(he)除塵器的(de)(de)優(you)(you)點(dian)在(zai)于(yu)濾袋的(de)(de)粉塵負荷量(liang)降低后,只要(yao)過(guo)濾速度選(xuan)得合(he)(he)適,系統阻力可(ke)以降低,清灰周(zhou)期也可(ke)延長。在(zai)國(guo)內一些(xie)(xie)(xie)企業設計的(de)(de)電袋復(fu)(fu)合(he)(he)除塵器上(shang)都能體現出(chu)這些(xie)(xie)(xie)優(you)(you)點(dian)。近年來(lai)我國(guo)在(zai)一些(xie)(xie)(xie)老電廠的(de)(de)改(gai)造項目中采用了電袋復(fu)(fu)合(he)(he)除塵器,新電廠的(de)(de)建設有的(de)(de)也采用了電袋復(fu)(fu)合(he)(he)除塵器。
相對于(yu)袋式(shi)除(chu)塵(chen)(chen)器(qi)而(er)言,就設備費(fei)(fei)用來說,電(dian)袋復合除(chu)塵(chen)(chen)器(qi)增加了電(dian)除(chu)塵(chen)(chen)部分,但可通過(guo)(guo)適(shi)當提高袋式(shi)除(chu)塵(chen)(chen)器(qi)的過(guo)(guo)濾(lv)速度(du)從而(er)在一(yi)定程度(du)上予以彌補。如(ru)果(guo)是電(dian)除(chu)塵(chen)(chen)器(qi)改(gai)造(zao)項目,由于(yu)可以保留原有電(dian)除(chu)塵(chen)(chen)器(qi)的一(yi)部分作預除(chu)塵(chen)(chen),電(dian)袋復合除(chu)塵(chen)(chen)器(qi)的設備費(fei)(fei)用就顯得更低。如(ru)果(guo)是新(xin)上項目,那就要取決于(yu)電(dian)袋復合除(chu)塵(chen)(chen)器(qi)中袋式(shi)除(chu)塵(chen)(chen)器(qi)的過(guo)(guo)濾(lv)速度(du)。
從國外的(de)經驗看(kan),電袋(dai)復合除塵器的(de)過濾(lv)速(su)度在(zai)逐年(nian)降低,如(ru)在(zai)最近(jin)(2000年(nian))的(de)1個(ge)項目中過濾(lv)速(su)度取為1.8m/min。但須要注意的(de)一點是(shi):這(zhe)個(ge)過濾(lv)速(su)度的(de)前(qian)提條(tiao)件(jian)是(shi)極(ji)低的(de)入口粉塵濃度(<1g/Nm3)及較高的(de)阻力設計值(將(jiang)近(jin)2000Pa)。
在(zai)前置的(de)(de)(de)電(dian)(dian)除(chu)塵(chen)(chen)(chen)(chen)器(qi)(qi)(qi)正常工作時,電(dian)(dian)袋(dai)復(fu)合(he)(he)(he)除(chu)塵(chen)(chen)(chen)(chen)器(qi)(qi)(qi)都表(biao)現(xian)出比(bi)電(dian)(dian)除(chu)塵(chen)(chen)(chen)(chen)器(qi)(qi)(qi)或袋(dai)式除(chu)塵(chen)(chen)(chen)(chen)器(qi)(qi)(qi)更好的(de)(de)(de)技術性能。但目前國內的(de)(de)(de)電(dian)(dian)袋(dai)復(fu)合(he)(he)(he)除(chu)塵(chen)(chen)(chen)(chen)器(qi)(qi)(qi)的(de)(de)(de)設計過濾速(su)度一(yi)般在(zai)1.2m/min左右,在(zai)這樣的(de)(de)(de)濾速(su)下,無論(lun)是(shi)(shi)設備費(fei)用或是(shi)(shi)運行(xing)費(fei)用,相對于袋(dai)式除(chu)塵(chen)(chen)(chen)(chen)器(qi)(qi)(qi)而言,電(dian)(dian)袋(dai)復(fu)合(he)(he)(he)除(chu)塵(chen)(chen)(chen)(chen)器(qi)(qi)(qi)都很(hen)難體(ti)現(xian)出優勢。因此提(ti)高電(dian)(dian)袋(dai)復(fu)合(he)(he)(he)除(chu)塵(chen)(chen)(chen)(chen)器(qi)(qi)(qi)中(zhong)的(de)(de)(de)過濾速(su)度,是(shi)(shi)降低電(dian)(dian)袋(dai)復(fu)合(he)(he)(he)除(chu)塵(chen)(chen)(chen)(chen)器(qi)(qi)(qi)成本的(de)(de)(de)一(yi)個(ge)主(zhu)要途徑。但在(zai)不增加清(qing)灰頻(pin)率的(de)(de)(de)前提(ti)下提(ti)高過濾速(su)度,設備的(de)(de)(de)阻力必然會加大。在(zai)電(dian)(dian)袋(dai)復(fu)合(he)(he)(he)除(chu)塵(chen)(chen)(chen)(chen)器(qi)(qi)(qi)的(de)(de)(de)設備成本與(yu)設備性能之間,如(ru)何(he)掌握(wo)一(yi)個(ge)合(he)(he)(he)適的(de)(de)(de)平衡點(dian)是(shi)(shi)今后需要解決的(de)(de)(de)一(yi)個(ge)課題。

使用微信“掃一掃”功能添加“谷騰環保網”