談包裝車間的粉塵治理
包裝車間是水泥廠最為嚴重的塵源之一。連續測試結果表明,某公司老式包裝機處于工作狀態時,作業點粉塵濃度高達9.6mg/Nm3,室內平均粉塵濃度7.8mg/Nm3,外排濃度210mg/Nm3,三項指標均超過了國家標準規定。1992年底,我們對老線包裝車間收塵系統進行了全面改造,兩年來的運行結果表明,本次改造效果較好,完全能達到國家標準規定,現將改造情況分述如下。
1 改造前的情況
1.1 改造前收塵工藝
某公司老線為一臺G4201型雙嘴水泥包裝機,收塵設施為兩級,一級是CLK-Φ700擴散式收塵器;二級是正壓袋式收塵器(自制),見表1,兩收塵器工作流程見圖1。
表1 正壓袋收塵工作參數
|
(1)系統阻力大,收塵效率低。擴散除塵器本身流體阻力較大(約1800Pa),又加之該正壓袋收塵為人工清灰,中間濾袋積灰不易清除,因而系統阻力大大增加,處理風量明顯減少,降低了收塵效率。
(2)該袋收塵器結構不合理,工作時為正壓,內濾結構,每當掉袋現象發生時,粉塵便充滿整個車間,污染現象嚴重。
(3)收塵風量不能滿足包裝機要求。袋收塵處理風量只有4800m3/h,是包裝機要求風量的80%左右。
(4)兩級收塵,工藝復雜。
![]() |
圖1 改造前工藝流程
1.G4201雙嘴固定包裝機;2.CLK700擴散除塵器;3.GX300螺旋輸送機;4.4-72-11№.5C風機;5.ZD型袖袋除塵器(64袋);6.閃動閥
2 改造情況
根據包裝車間粉塵干、細的特點和原收塵器的收塵情況,經過多次論證,選用了合肥水泥院設計的FD系列回轉反吹袋式收塵器(見表2),同時對傳統的收塵點也做了改進,收塵工藝見圖2。
表2 FD180-78袋收塵器性能
|
![]() |
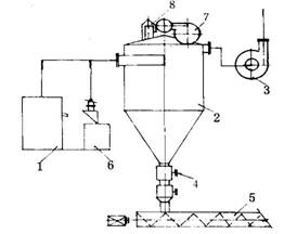
圖2 改造后收塵工藝
1.G4201雙嘴固定包裝機;2.FD180-78收塵器;3.4-72-11№.6C風機;4.雙層閃動閥;5.GX400螺旋輸送機;6.操作臺;7.反吹風機;8.行星擺線針輪減速機
2.1 FD180收塵器的特點
(1)FD180收塵器是一種復合式除塵器,是重力與袋收塵的結合,含塵氣體低進高出,避免了二次揚塵;風側向進入收塵器,在離心力的作用下,粗粉落入灰斗,微粒粉塵隨氣體散落于濾袋間(外濾),粉塵在風的作用下,阻留在濾袋外表面,凈化后的氣體進入收塵器頂部,由引風機排出。
(2)脈動清灰。反吹風機的高壓風經反吹閥產生脈動,通過反吹管進入反吹機構,反吹機構由行星擺線針輪減速機帶動,高壓脈動,風依次進入各個濾袋,清除表面積灰。其構造見圖3。
(3)風量能滿足收塵要求。
![]() |
圖3 反吹機構示意圖
1.反吹孔;2.反吹機構
2.2 收塵點的改造情況
傳統的收塵點一般開在包裝機后部和前上部抽吸。實測表明:彌散于車間的粉塵,絕大多數產生于包裝機出料嘴處,針對這一特點,我們在機嘴斜上方(操作臺上),特設一個三角形收塵罩(見圖4),這樣彌散于外部的粉塵便通過收塵罩全部抽吸進去,工人操作環境大為改善。
![]() |
圖4 收塵罩示意圖
3 治理效果
兩年來的多次測試結果表明,收塵效果完全能達到國家標準(收塵效果對比見表3)。在1993年新生產線包裝車間,我們仍然選用了反吹袋收塵器(FD300-148),同樣取得了較好的收塵效果見表4。
表3 改造前后收塵效果對比表
|
表4 FD300-148收塵器收塵效果
|

使用微信“掃一掃”功能添加“谷騰環保網”